1. トップ
  2. 福島県 郡山市 大町1丁目
  3. ジブラルタ生命郡山ビル

PROPERTY INFORMATION

お問い合わせ

ジブラルタ生命郡山ビル

物件の基本情報
物件名 ジブラルタ生命郡山ビル
所在地 MAP
交通
竣工年月 1995年3月
リニューアル ---
構造・規模 鉄筋コンクリート(RC造)
地上:9階
基準階面積(坪) ---
天井高 2800mm
空調 個別タイプ
エレベーター 2 基
駐車場 39 台
耐震性能 ---
取引態様 媒介

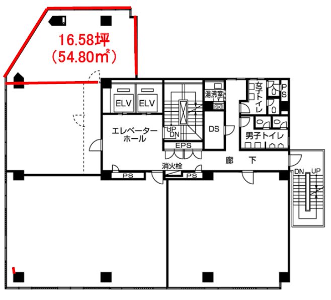
フロア情報

選択 階数 面積 賃料(共益費込) 入居時期 検討リスト
7階 33.95坪
112.23㎡
相談 即日
1階 61.95坪
204.79㎡
相談 即日

物件情報に関する表示ルールについては当サイトのご利用規約をお読みください。

ご利用規約

CONTACT US お問い合わせ

オフィスをお探しのみなさま

掲載中の物件以外にも、多数物件を取り扱っております。お電話またはお問い合わせフォームからお気軽にお問い合わせください。

三菱地所リアルエステートサービス株式会社
ビル営業部

お問い合わせはお電話でも承ります。
お気軽にお問い合わせください。

受付時間 9:30 〜 17:30(平日)