PROPERTY INFORMATION
神田橋パークビル
| 物件名 | 神田橋パークビル |
|---|---|
| 所在地 |
1丁目
19-1
MAP
|
| 交通 |
徒歩5分
徒歩5分
徒歩5分
徒歩5分
徒歩8分
徒歩5分
|
| 竣工年月 | 1993年7月 |
| リニューアル | --- |
| 構造・規模 | 鉄骨鉄筋コンクリート(SRC造) 地上:10階、地下:1階 |
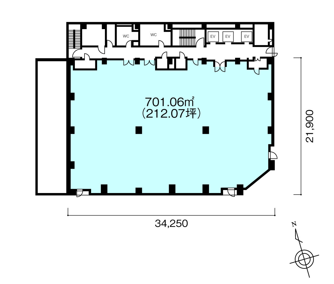
| 基準階面積(坪) | 212.07坪 |
| 天井高 | 2700mm |
| 空調 | 個別タイプ |
| エレベーター | 3 基 |
| 駐車場 | 26 台 |
| 耐震性能 | --- |
| 取引態様 | 媒介 |
1 / 10
google map
ハザードマップを見る
物件紹介
神田橋パークビルは東京都千代田区神田錦町1丁目に所在しており、基準階面積は 212.07 坪、延床面積は 2,868.35坪の、オフィスビルです。東京地下鉄丸ノ内線の大手町駅から徒歩5分です。1993年7月竣工で、建物の構造は、鉄骨鉄筋コンクリート(SRC造)で、地上10階・地下1階建です。基準階オフィスの空調方式は個別タイプ、天井高は2700mm、床仕様はOA床、エレベーターは3基設置されております。
このエリアは、ビジネス街としての利便性が高く、多くの企業がオフィスを構えています。また、歴史的な建物や文化施設も点在しており、ビジネスと文化が融合した魅力的な地域です。
物件情報に関する表示ルールについては当サイトのご利用規約をお読みください。
ご利用規約CONTACT US お問い合わせ
オフィスをお探しのみなさま
掲載中の物件以外にも、多数物件を取り扱っております。お電話またはお問い合わせフォームからお気軽にお問い合わせください。



