PROPERTY INFORMATION
東急不動産赤坂ビル
| 物件名 | 東急不動産赤坂ビル |
|---|---|
| 所在地 |
2丁目
14-3
MAP
|
| 交通 |
徒歩1分
徒歩1分
徒歩2分
徒歩2分
徒歩2分
|
| 竣工年月 | 1969年9月 |
| リニューアル | 2014年3月 |
| 構造・規模 | 鉄骨鉄筋コンクリート(SRC造) 地上:14階、地下:2階 |
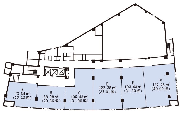
| 基準階面積(坪) | 144.95坪 |
| 天井高 | 2490mm |
| 空調 | セントラル+個別 |
| エレベーター | 2 基 |
| 駐車場 | 147 台 |
| 耐震性能 | --- |
| 取引態様 | 媒介 |
1 / 10
google map
ハザードマップを見る
物件紹介
東急不動産赤坂ビルは東京都千代田区永田町2丁目に所在しており、基準階面積は 144.95 坪、延床面積は 15,366.69 坪の、大型オフィスビルです。東京地下鉄銀座線の赤坂見附駅からは徒歩1分で、交通利便性に優れています。1969年9月竣工で、2014年3月にリニューアル済み、建物の構造は、鉄骨鉄筋コンクリート(SRC造)で、地上14階・地下2階建です。基準階オフィスの空調方式はセントラル+個別、天井高は2490mm、エレベーターは2基設置されております。
このエリアは、政治や経済の中心地であり、多くの政府機関や大企業の本社が集まっています。また、周辺には高級ホテルやレストランも多く、ビジネスや観光の拠点としても人気があります。
物件情報に関する表示ルールについては当サイトのご利用規約をお読みください。
ご利用規約CONTACT US お問い合わせ
オフィスをお探しのみなさま
掲載中の物件以外にも、多数物件を取り扱っております。お電話またはお問い合わせフォームからお気軽にお問い合わせください。



