PROPERTY INFORMATION
岸本ビルヂング
| 物件名 | 岸本ビルヂング |
|---|---|
| 所在地 |
2丁目
2-1
MAP
|
| 交通 |
徒歩4分
徒歩4分
徒歩5分
徒歩1分
徒歩4分
徒歩4分
|
| 竣工年月 | 1980年7月 |
| リニューアル | --- |
| 構造・規模 | 鉄骨鉄筋コンクリート(SRC造) 地上:11階、地下:2階 |
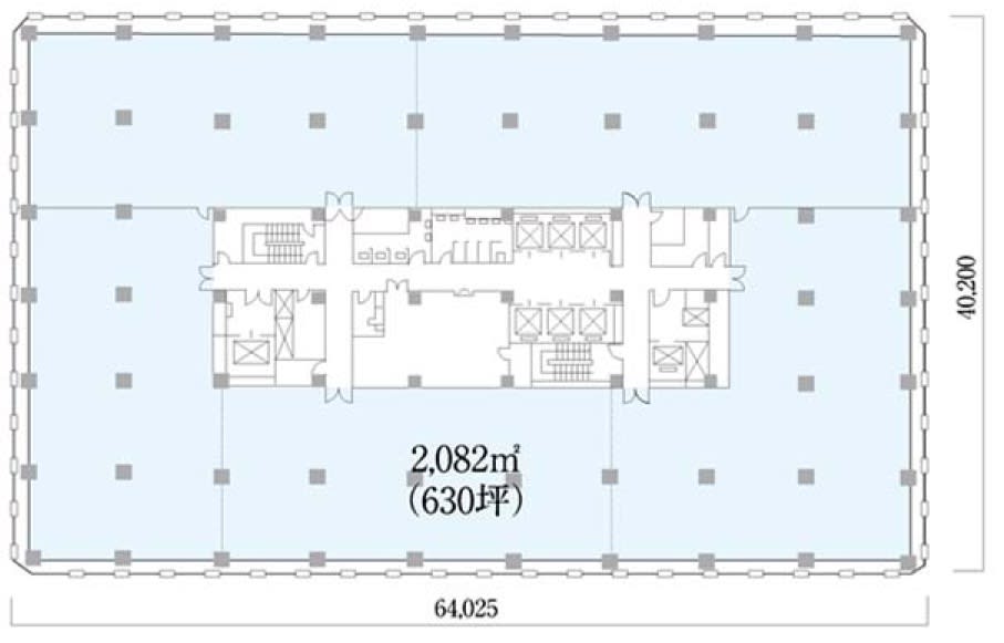
| 基準階面積(坪) | 629.79坪 |
| 天井高 | 2510mm |
| 空調 | フロアタイプ |
| エレベーター | 6 基 |
| 駐車場 | 111 台 |
| 耐震性能 | --- |
| 取引態様 | 媒介 |
1 / 10
google map
ハザードマップを見る
物件紹介
岸本ビルヂングは東京都千代田区丸の内2丁目に所在しており、基準階面積は 629.79 坪、延床面積は 10,276.53 坪の、大型オフィスビルです。東京地下鉄千代田線の二重橋前駅からは徒歩1分で、交通利便性に優れています。1980年7月竣工で、建物の構造は、鉄骨鉄筋コンクリート(SRC造)で、地上11階・地下2階建です。基準階オフィスの空調方式はフロアタイプ、天井高は2510mm、床仕様はOA床、エレベーターは6基設置されております。
このエリアは、ビジネス街として多くの企業が集まる一方、商業施設や飲食店も充実しています。歴史的な建物や観光スポットも点在しており、訪れる人々に多様な魅力を提供しています。
物件情報に関する表示ルールについては当サイトのご利用規約をお読みください。
ご利用規約CONTACT US お問い合わせ
オフィスをお探しのみなさま
掲載中の物件以外にも、多数物件を取り扱っております。お電話またはお問い合わせフォームからお気軽にお問い合わせください。



