PROPERTY INFORMATION
日本プレスセンタービル
| 物件名 | 日本プレスセンタービル |
|---|---|
| 所在地 |
2丁目
2-1
MAP
|
| 交通 |
徒歩1分
徒歩1分
徒歩3分
徒歩5分
徒歩9分
|
| 竣工年月 | 1976年7月 |
| リニューアル | 2004年9月 |
| 構造・規模 | 鉄骨(S造) 鉄骨鉄筋コンクリート(SRC造) 地上:11階、地下:3階 |
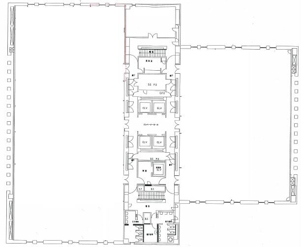
| 基準階面積(坪) | 588坪 |
| 天井高 | 2600mm |
| 空調 | 個別タイプ |
| エレベーター | 4 基 |
| 駐車場 | 有り |
| 耐震性能 | --- |
| 取引態様 | 媒介 |
1 / 10
google map
ハザードマップを見る
物件紹介
日本プレスセンタービルは東京都千代田区内幸町2丁目に所在しており、基準階面積は 588.00 坪、延床面積は 7,785.44 坪の、大型オフィスビルです。都営三田線の内幸町駅に直結しており、雨の日でも濡れずにアクセスが可能です。1976年7月竣工で、2004年9月にリニューアル済み、建物の構造は、鉄骨(S造)・鉄骨鉄筋コンクリート(SRC造)で、地上11階・地下3階建です。基準階オフィスの空調方式は個別タイプ、天井高は2600mm、床仕様はOA床、エレベーターは4基設置されております。
このエリアは、ビジネス街として多くの企業が集まっており、商業施設や飲食店も充実しています。また、交通の便が非常に良く、主要な駅や観光スポットへのアクセスも便利です。
物件情報に関する表示ルールについては当サイトのご利用規約をお読みください。
ご利用規約CONTACT US お問い合わせ
オフィスをお探しのみなさま
掲載中の物件以外にも、多数物件を取り扱っております。お電話またはお問い合わせフォームからお気軽にお問い合わせください。



