PROPERTY INFORMATION
朝日生命大手町ビル
| 物件名 | 朝日生命大手町ビル |
|---|---|
| 所在地 |
2丁目
6-1
MAP
|
| 交通 |
徒歩1分
徒歩2分
|
| 竣工年月 | 1971年7月 |
| リニューアル | 2002年5月 |
| 構造・規模 | 鉄骨(S造) 鉄骨鉄筋コンクリート(SRC造) 地上:29階、地下:4階 |
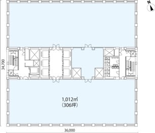
| 基準階面積(坪) | 300坪 |
| 天井高 | 2470mm |
| 空調 | セントラル |
| エレベーター | 11 基 |
| 駐車場 | 800 台 |
| 耐震性能 | --- |
| 取引態様 | 媒介 |
1 / 10
google map
ハザードマップを見る
物件紹介
朝日生命大手町ビルは東京都千代田区大手町2丁目に所在しており、基準階面積は 300.00 坪、延床面積は 14,841.00 坪の、大型オフィスビルです。東京地下鉄東西線の大手町駅に直結しており、雨の日でも濡れずにアクセスが可能です。1971年7月竣工で、2002年5月にリニューアル済み、建物の構造は、鉄骨(S造)・鉄骨鉄筋コンクリート(SRC造)で、地上29階・地下4階建です。基準階オフィスの空調方式はセントラル、天井高は2470mm、床仕様はOA床、エレベーターは11基設置されております。
このエリアは、ビジネスの中心地として多くの企業が集まっており、金融機関や大手企業の本社が建ち並んでいます。また、歴史的な建物や観光スポットも多く、観光客にも人気のエリアです。
物件情報に関する表示ルールについては当サイトのご利用規約をお読みください。
ご利用規約CONTACT US お問い合わせ
オフィスをお探しのみなさま
掲載中の物件以外にも、多数物件を取り扱っております。お電話またはお問い合わせフォームからお気軽にお問い合わせください。



