PROPERTY INFORMATION
東京堂千代田ビルディング
| 物件名 | 東京堂千代田ビルディング |
|---|---|
| 所在地 |
1丁目
3-1
MAP
|
| 交通 |
徒歩2分
徒歩2分
徒歩2分
徒歩6分
徒歩7分
徒歩14分
|
| 竣工年月 | 1977年6月 |
| リニューアル | 2002年 |
| 構造・規模 | 鉄骨(S造) 鉄筋コンクリート(RC造) 鉄骨鉄筋コンクリート(SRC造) 地上:20階、地下:4階 |
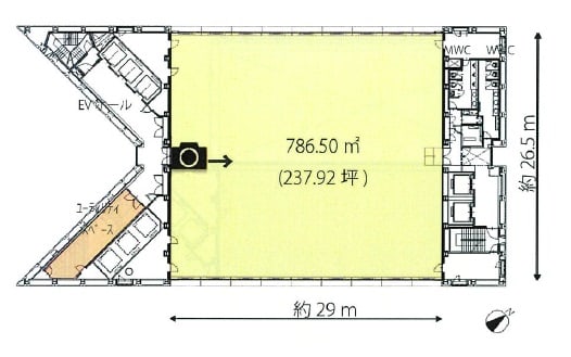
| 基準階面積(坪) | 237.98坪 |
| 天井高 | 2700mm |
| 空調 | セントラル |
| エレベーター | 6 基 |
| 駐車場 | 68 台 |
| 耐震性能 | --- |
| 取引態様 | 媒介 |
1 / 10
google map
ハザードマップを見る
物件紹介
東京堂千代田ビルディングは東京都千代田区九段南1丁目に所在しており、基準階面積は 237.98 坪、延床面積は 10,232.29 坪の、大型オフィスビルです。東京地下鉄半蔵門線の九段下駅からは徒歩2分で、交通利便性に優れています。1977年6月竣工で、2002年にリニューアル済み、建物の構造は、鉄骨(S造)・鉄筋コンクリート(RC造)・鉄骨鉄筋コンクリート(SRC造)で、地上20階・地下4階建です。基準階オフィスの空調方式はセントラル、天井高は2700mm、床仕様はOA床、エレベーターは6基設置されております。
このエリアは、歴史的な建物や名所が多く、観光スポットとしても人気があります。また、ビジネス街としても発展しており、多くの企業がオフィスを構えています。
物件情報に関する表示ルールについては当サイトのご利用規約をお読みください。
ご利用規約CONTACT US お問い合わせ
オフィスをお探しのみなさま
掲載中の物件以外にも、多数物件を取り扱っております。お電話またはお問い合わせフォームからお気軽にお問い合わせください。



