PROPERTY INFORMATION
麹町ダイビル
| 物件名 | 麹町ダイビル |
|---|---|
| 所在地 |
5丁目
7-1
MAP
|
| 交通 |
徒歩5分
徒歩6分
徒歩9分
|
| 竣工年月 | 1976年9月 |
| リニューアル | --- |
| 構造・規模 | 鉄骨(S造) 鉄骨鉄筋コンクリート(SRC造) 地上:7階、地下:2階 |
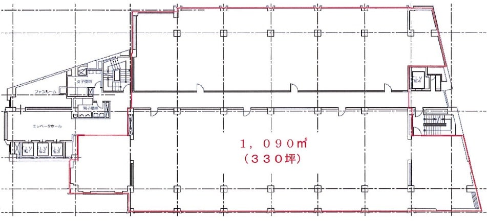
| 基準階面積(坪) | 330坪 |
| 天井高 | 2500mm |
| 空調 | 個別タイプ |
| エレベーター | 3 基 |
| 駐車場 | 29 台 |
| 耐震性能 | --- |
| 取引態様 | 媒介 |
1 / 10
google map
ハザードマップを見る
物件紹介
麹町ダイビルは東京都千代田区麹町5丁目に所在しており、基準階面積は 330.00 坪、延床面積は 3,512.00 坪の、大型オフィスビルです。東京地下鉄有楽町線の麹町駅から徒歩5分です。1976年9月竣工で、建物の構造は、鉄骨(S造)・鉄骨鉄筋コンクリート(SRC造)で、地上7階・地下2階建です。基準階オフィスの空調方式は個別タイプ、天井高は2500mm、エレベーターは3基設置されております。
このエリアは、ビジネス街としての利便性が高く、多くの企業がオフィスを構えています。また、周辺には飲食店やカフェも多く、ランチタイムや仕事後のリフレッシュに最適です。
物件情報に関する表示ルールについては当サイトのご利用規約をお読みください。
ご利用規約CONTACT US お問い合わせ
オフィスをお探しのみなさま
掲載中の物件以外にも、多数物件を取り扱っております。お電話またはお問い合わせフォームからお気軽にお問い合わせください。



