PROPERTY INFORMATION
岩本町東洋ビル
| 物件名 | 岩本町東洋ビル |
|---|---|
| 所在地 |
3丁目
1-2
MAP
|
| 交通 |
徒歩1分
徒歩6分
徒歩5分
徒歩6分
徒歩6分
|
| 竣工年月 | 1993年6月 |
| リニューアル | --- |
| 構造・規模 | 鉄骨鉄筋コンクリート(SRC造) 地上:9階、地下:1階 |
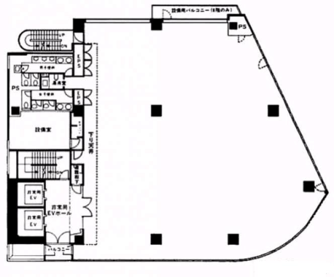
| 基準階面積(坪) | 145.55坪 |
| 天井高 | 2500mm |
| 空調 | 個別タイプ |
| エレベーター | 2 基 |
| 駐車場 | 24 台 |
| 耐震性能 | --- |
| 取引態様 | 媒介 |
1 / 10
google map
ハザードマップを見る
物件紹介
岩本町東洋ビルは東京都千代田区岩本町3丁目に所在しており、基準階面積は 145.55 坪、延床面積は 1,623.60坪の、オフィスビルです。都営新宿線の岩本町駅からは徒歩1分で、交通利便性に優れています。1993年6月竣工で、建物の構造は、鉄骨鉄筋コンクリート(SRC造)で、地上9階・地下1階建です。基準階オフィスの空調方式は個別タイプ、天井高は2500mm、エレベーターは2基設置されております。
このエリアは、ビジネス街としての機能が充実しており、多くの企業がオフィスを構えています。また、周辺には飲食店やカフェも多く、ランチタイムや仕事後のリフレッシュに便利です。
物件情報に関する表示ルールについては当サイトのご利用規約をお読みください。
ご利用規約CONTACT US お問い合わせ
オフィスをお探しのみなさま
掲載中の物件以外にも、多数物件を取り扱っております。お電話またはお問い合わせフォームからお気軽にお問い合わせください。



