PROPERTY INFORMATION
ラウンドクロス一番町ビル
| 物件名 | ラウンドクロス一番町ビル |
|---|---|
| 所在地 |
13-3
MAP
|
| 交通 |
徒歩10分
徒歩1分
徒歩7分
東京都新宿線
市ヶ谷駅
徒歩8分
|
| 竣工年月 | 1994年2月 |
| リニューアル | --- |
| 構造・規模 | 鉄骨鉄筋コンクリート(SRC造) 地上:8階 |
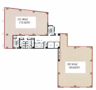
| 基準階面積(坪) | 165.9坪 |
| 天井高 | 2550mm |
| 空調 | 個別タイプ |
| エレベーター | 2 基 |
| 駐車場 | 有り |
| 耐震性能 | --- |
| 取引態様 | 媒介 |
1 / 10
google map
ハザードマップを見る
物件紹介
ラウンドクロス一番町ビルは東京都千代田区一番町に所在しており、基準階面積は 165.90 坪、延床面積は 399.60坪の、オフィスビルです。東京地下鉄半蔵門線の半蔵門駅から徒歩1分です。1994年2月竣工で、建物の構造は、鉄骨鉄筋コンクリート(SRC造)で、地上8階建です。基準階オフィスの空調方式は個別タイプ、天井高は2550mm、床仕様はOA床、エレベーターは2基設置されております。
このエリアは、歴史的な建物や緑豊かな公園が多く、落ち着いた雰囲気が特徴です。また、ビジネス街としても発展しており、利便性の高いエリアです。
物件情報に関する表示ルールについては当サイトのご利用規約をお読みください。
ご利用規約CONTACT US お問い合わせ
オフィスをお探しのみなさま
掲載中の物件以外にも、多数物件を取り扱っております。お電話またはお問い合わせフォームからお気軽にお問い合わせください。



