PROPERTY INFORMATION
神田KSビル
| 物件名 | 神田KSビル |
|---|---|
| 所在地 |
1丁目
8-6
MAP
|
| 交通 |
徒歩4分
徒歩4分
|
| 竣工年月 | 1990年10月 |
| リニューアル | --- |
| 構造・規模 | 地上:7階、地下:1階 |
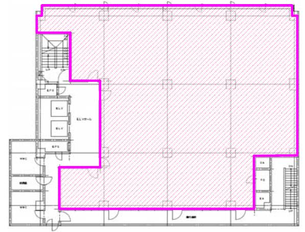
| 基準階面積(坪) | 113.69坪 |
| 天井高 | --- |
| 空調 | 個別タイプ |
| エレベーター | --- |
| 駐車場 | 有り |
| 耐震性能 | --- |
| 取引態様 | 媒介 |
1 / 10
google map
ハザードマップを見る
物件紹介
神田KSビルは東京都千代田区鍛冶町1丁目に所在しており、基準階面積は 113.69 坪、延床面積は 1,171.45坪の、オフィスビルです。総武本線の新日本橋駅からは徒歩4分で、交通利便性に優れています。1990年10月竣工で、地上7階・地下1階建です。基準階オフィスの空調方式は個別タイプ、床仕様はOA床です。
このエリアは、ビジネス街として多くの企業が集まっており、商業施設や飲食店も充実しています。また、歴史的な建物や文化施設も点在しており、観光地としても人気があります。
物件情報に関する表示ルールについては当サイトのご利用規約をお読みください。
ご利用規約CONTACT US お問い合わせ
オフィスをお探しのみなさま
掲載中の物件以外にも、多数物件を取り扱っております。お電話またはお問い合わせフォームからお気軽にお問い合わせください。



