PROPERTY INFORMATION
小川町メセナビル
| 物件名 | 小川町メセナビル |
|---|---|
| 所在地 |
1丁目
7
MAP
|
| 交通 |
徒歩1分
徒歩1分
徒歩3分
|
| 竣工年月 | 1992年6月 |
| リニューアル | --- |
| 構造・規模 | 鉄骨(S造) 鉄筋コンクリート(RC造) 地上:10階、地下:1階 |
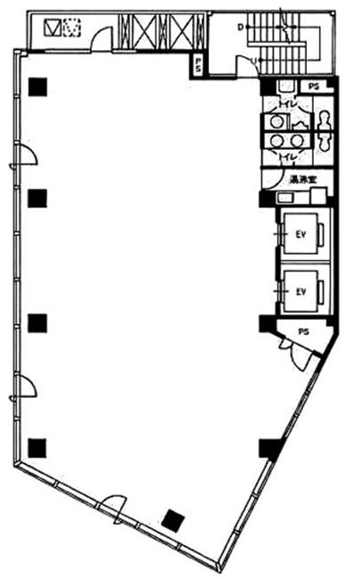
| 基準階面積(坪) | 53.44坪 |
| 天井高 | 2500mm |
| 空調 | 個別タイプ |
| エレベーター | 2 基 |
| 駐車場 | --- |
| 耐震性能 | --- |
| 取引態様 | 貸主 |
1 / 10
google map
ハザードマップを見る
物件情報に関する表示ルールについては当サイトのご利用規約をお読みください。
ご利用規約CONTACT US お問い合わせ
オフィスをお探しのみなさま
掲載中の物件以外にも、多数物件を取り扱っております。お電話またはお問い合わせフォームからお気軽にお問い合わせください。



