PROPERTY INFORMATION
PMO秋葉原Ⅱ
| 物件名 | PMO秋葉原Ⅱ |
|---|---|
| 所在地 |
2丁目
3-10
MAP
|
| 交通 |
徒歩4分
徒歩4分
徒歩7分
徒歩7分
|
| 竣工年月 | 2011年1月 |
| リニューアル | --- |
| 構造・規模 | 鉄骨(S造) 地上:7階 |
| 基準階面積(坪) | 136.14坪 |
| 天井高 | 2800mm |
| 空調 | 個別タイプ |
| エレベーター | 2 基 |
| 駐車場 | 10 台 |
| 耐震性能 | --- |
| 取引態様 | 媒介 |
1 / 10
google map
ハザードマップを見る
物件紹介
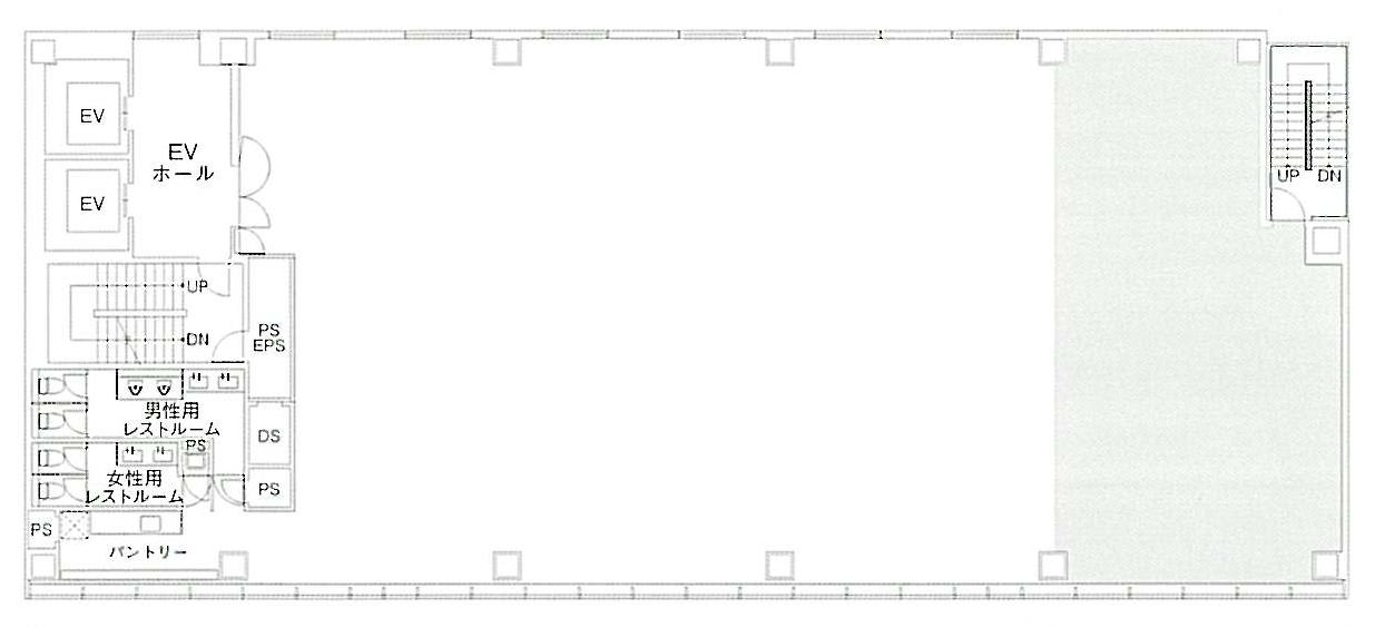
PMO秋葉原Ⅱは東京都千代田区東神田2丁目に所在しており、基準階面積は 136.14 坪、延床面積は 1,059.65坪の、オフィスビルです。東京地下鉄日比谷線の秋葉原駅からは徒歩4分で、交通利便性に優れています。2011年1月竣工で、建物の構造は、鉄骨(S造)となっており、地上7階建です。基準階オフィスの空調方式は個別タイプ、天井高は2800mm、床仕様はOA床、エレベーターは2基設置されております。
このエリアは、商業施設や飲食店が多く、ビジネスパーソンにとって便利な環境が整っています。また、歴史的な建物や文化施設も点在しており、観光客にも人気のエリアです。
物件情報に関する表示ルールについては当サイトのご利用規約をお読みください。
ご利用規約CONTACT US お問い合わせ
オフィスをお探しのみなさま
掲載中の物件以外にも、多数物件を取り扱っております。お電話またはお問い合わせフォームからお気軽にお問い合わせください。



