PROPERTY INFORMATION
JR神田万世橋ビル
| 物件名 | JR神田万世橋ビル |
|---|---|
| 所在地 |
1丁目
25
MAP
|
| 交通 |
徒歩4分
徒歩6分
徒歩4分
徒歩6分
徒歩6分
|
| 竣工年月 | 2013年1月 |
| リニューアル | --- |
| 構造・規模 | 鉄骨(S造) 鉄骨鉄筋コンクリート(SRC造) 地上:20階、地下:2階 |
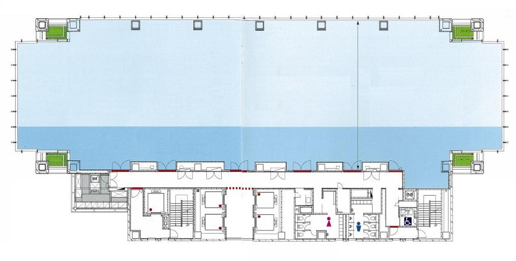
| 基準階面積(坪) | 289.64坪 |
| 天井高 | 2800mm |
| 空調 | 個別タイプ |
| エレベーター | 8 基 |
| 駐車場 | 87 台 |
| 耐震性能 | --- |
| 取引態様 | 媒介 |
1 / 10
google map
ハザードマップを見る
物件紹介
JR神田万世橋ビルは東京都千代田区神田須田町1丁目に所在しており、基準階面積は 289.64 坪、延床面積は 8,621.97 坪の、大型オフィスビルです。都営新宿線の小川町駅からは徒歩4分で、交通利便性に優れています。2013年1月竣工で、建物の構造は、鉄骨(S造)・鉄骨鉄筋コンクリート(SRC造)で、地上20階・地下2階建です。基準階オフィスの空調方式は個別タイプ、天井高は2800mm、床仕様はOA床、エレベーターは8基設置されております。
このエリアは、歴史的な建物や商業施設が多く、観光地としても人気があります。また、ビジネス街としても発展しており、多くの企業がオフィスを構えています。
物件情報に関する表示ルールについては当サイトのご利用規約をお読みください。
ご利用規約CONTACT US お問い合わせ
オフィスをお探しのみなさま
掲載中の物件以外にも、多数物件を取り扱っております。お電話またはお問い合わせフォームからお気軽にお問い合わせください。



