PROPERTY INFORMATION
KY三番町ビル
| 物件名 | KY三番町ビル |
|---|---|
| 所在地 |
1
MAP
|
| 交通 |
徒歩5分
|
| 竣工年月 | 1984年8月 |
| リニューアル | --- |
| 構造・規模 | 鉄骨鉄筋コンクリート(SRC造) 地上:8階、地下:1階 |
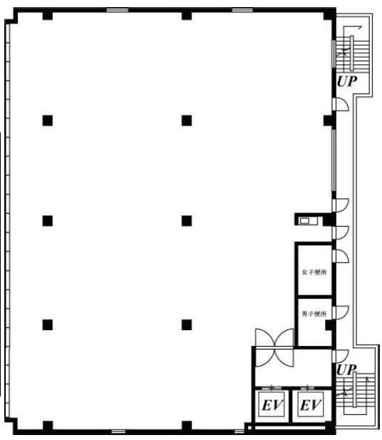
| 基準階面積(坪) | 130.93坪 |
| 天井高 | 2600mm |
| 空調 | 個別タイプ |
| エレベーター | 2 基 |
| 駐車場 | 有り |
| 耐震性能 | --- |
| 取引態様 | 媒介 |
1 / 10
google map
ハザードマップを見る
物件紹介
KY三番町ビルは東京都千代田区三番町に所在しており、基準階面積は 130.93 坪、東京地下鉄半蔵門線の半蔵門駅から徒歩5分です。1984年8月竣工で、建物の構造は、鉄骨鉄筋コンクリート(SRC造)で、地上8階・地下1階建です。基準階オフィスの空調方式は個別タイプ、天井高は2600mm、エレベーターは2基設置されております。
このエリアは、歴史的な建物や緑豊かな公園が多く、落ち着いた雰囲気が特徴です。また、ビジネス街としても発展しており、利便性が高いです。
物件情報に関する表示ルールについては当サイトのご利用規約をお読みください。
ご利用規約CONTACT US お問い合わせ
オフィスをお探しのみなさま
掲載中の物件以外にも、多数物件を取り扱っております。お電話またはお問い合わせフォームからお気軽にお問い合わせください。



