PROPERTY INFORMATION
住友商事錦町ビル
| 物件名 | 住友商事錦町ビル |
|---|---|
| 所在地 |
1丁目
6
MAP
|
| 交通 |
徒歩10分
徒歩10分
徒歩2分
徒歩3分
徒歩5分
徒歩8分
|
| 竣工年月 | 2011年10月 |
| リニューアル | --- |
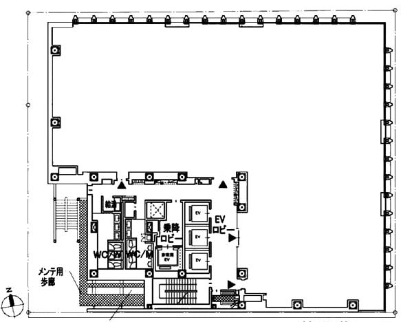
| 構造・規模 | 鉄骨(S造) 地上:10階、地下:1階 |
| 基準階面積(坪) | 206.38坪 |
| 天井高 | 2800mm |
| 空調 | 個別タイプ |
| エレベーター | 3 基 |
| 駐車場 | 28 台 |
| 耐震性能 | --- |
| 取引態様 | 媒介 |
1 / 10
google map
ハザードマップを見る
物件紹介
住友商事錦町ビルは東京都千代田区神田錦町1丁目に所在しており、基準階面積は 206.38 坪、延床面積は 2,734.90坪の、オフィスビルです。都営新宿線の小川町駅から徒歩2分です。2011年10月竣工で、建物の構造は、鉄骨(S造)で、地上10階・地下1階建です。基準階オフィスの空調方式は個別タイプ、天井高は2800mm、床仕様はOA床、エレベーターは3基設置されております。
このエリアは、歴史的な建物や文化施設が多く、ビジネスと文化が融合した魅力的な地域です。交通の便が良く、多くの企業がオフィスを構える人気のエリアです。
物件情報に関する表示ルールについては当サイトのご利用規約をお読みください。
ご利用規約CONTACT US お問い合わせ
オフィスをお探しのみなさま
掲載中の物件以外にも、多数物件を取り扱っております。お電話またはお問い合わせフォームからお気軽にお問い合わせください。



