PROPERTY INFORMATION
NMF駿河台ビル
| 物件名 | NMF駿河台ビル |
|---|---|
| 所在地 |
2丁目
5-12
MAP
|
| 交通 |
徒歩4分
徒歩5分
徒歩7分
徒歩4分
|
| 竣工年月 | 1997年4月 |
| リニューアル | --- |
| 構造・規模 | 鉄骨(S造) 鉄筋コンクリート(RC造) 地上:8階、地下:1階 |
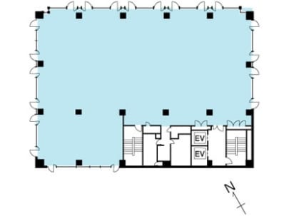
| 基準階面積(坪) | 189.46坪 |
| 天井高 | 2700mm |
| 空調 | 個別タイプ |
| エレベーター | 2 基 |
| 駐車場 | 36 台 |
| 耐震性能 | 免震 |
| 取引態様 | 媒介 |
1 / 10
物件紹介
NMF駿河台ビルは、東京都千代田区神田駿河台2丁目に所在するオフィスビルです。鉄骨(S造)・鉄筋コンクリート(RC造)の構造を有し、規模は地上8階・地下1階建です。交通利便性に優れ、JR中央本線および総武・中央緩行線御茶ノ水駅より徒歩4分、東京地下鉄丸ノ内線御茶ノ水駅より徒歩5分、千代田線新御茶ノ水駅より徒歩7分の距離に位置しています。
■ 落ち着きと品格を備えた外観デザイン
本物件は千代田区神田駿河台の文教地区にふさわしい落ち着いた外観を備えています。延床面積は約1,749坪の規模を誇り、8階建ての端正なフォルムは周囲の環境と調和しながらも確かな存在感を示しています。来客を迎え入れるエントランスは格調高い仕様で整えられており、企業の信頼性を高めるビジネス拠点としての風格を体現しています。
■ 高い汎用性と開放感を実現する執務スペック
基準階面積は約189坪を確保しており、無柱空間の設計により効率的で柔軟なレイアウトが可能です。天井高は2,700mmの設定により、ゆとりある開放的な執務環境を提供します。床面には配線作業を容易にするOAフロアが設置されており、機能的なオフィス構築を支援します。基準階オフィスの空調方式は個別タイプが導入されているため、各エリアでのきめ細かな温度管理が可能です。
■ 利便性と知的環境が共存するビジネス拠点
本物件が位置する御茶ノ水エリアは、公共施設や金融機関、教育機関が集積する利便性の高い地域です。徒歩圏内に主要な銀行が点在しており、日常の業務を効率的に遂行できる環境が整っています。JR東京駅へダイレクトにアクセス可能な交通網は、広範なビジネス活動の基盤となります。落ち着いた周辺環境は、集中力を要する高度な業務にも適した環境です。
■ 免震構造による高度な安全性と信頼
建物の構造には免震を採用しており、地震エネルギーを吸収することで建物への衝撃を大幅に低減します。優れた耐震性能は、企業の重要な資産や人材を守るだけでなく、災害時の事業継続を可能にする強固な基盤となります。館内には2基のエレベーターが完備され、日々の円滑な移動を支えています。堅牢な建物仕様と充実した設備により、確かな安心感の中で事業に専念できる環境を提供します。
NMF駿河台ビルは、千代田区の恵まれた立地と高い機能性を備えた拠点です。免震構造による安全性と、個別空調やOAフロアといったスペックは、ビジネスの生産性を高めるための機能的価値を提供します。交通アクセスの優位性と質の高い執務空間は、企業の持続的な成長を支えるための確固たる基盤を構築します。
物件情報に関する表示ルールについては当サイトのご利用規約をお読みください。
ご利用規約CONTACT US お問い合わせ
オフィスをお探しのみなさま
掲載中の物件以外にも、多数物件を取り扱っております。お電話またはお問い合わせフォームからお気軽にお問い合わせください。



