PROPERTY INFORMATION
麹町広洋ビルディング
| 物件名 | 麹町広洋ビルディング | 
|---|---|
| 所在地 | 
                  
                                      
                                                        
                                                                          1丁目
                                    10-11
                MAP | 
| 交通 | 
                                          
                       
                      
                       
                                                              徒歩5分
                                       
                                          
                       
                      
                       
                                                              徒歩1分
                                       
                                          
                       
                      
                       
                                                              徒歩11分
                                       | 
| 竣工年月 | 1983年7月 | 
| リニューアル | --- | 
| 構造・規模 | 鉄骨鉄筋コンクリート(SRC造) 地上:8階、地下:1階 | 
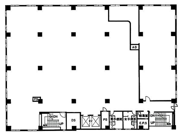
| 基準階面積(坪) | 179.21坪 | 
| 天井高 | 2550mm | 
| 空調 | 個別タイプ | 
| エレベーター | 2 基 | 
| 駐車場 | 10 台 | 
| 耐震性能 | --- | 
| 取引態様 | 媒介 | 
1 / 10
google map
        ハザードマップを見る
      物件紹介
麹町広洋ビルディングは東京都千代田区麹町1丁目に所在しており、基準階面積は 179.21 坪、東京地下鉄半蔵門線の半蔵門駅から徒歩1分です。1983年7月竣工で、建物の構造は、鉄骨鉄筋コンクリート(SRC造)で、地上8階・地下1階建です。基準階オフィスの空調方式は個別タイプ、天井高は2550mm、床仕様はOA床、エレベーターは2基設置されております。
このエリアは、ビジネス街としての利便性が高く、周辺には多くのオフィスビルや商業施設が立ち並んでいます。また、歴史的な建物や公園も点在しており、落ち着いた雰囲気が魅力です。
物件情報に関する表示ルールについては当サイトのご利用規約をお読みください。
ご利用規約CONTACT US お問い合わせ
オフィスをお探しのみなさま
 
        掲載中の物件以外にも、多数物件を取り扱っております。お電話またはお問い合わせフォームからお気軽にお問い合わせください。
 
      


