PROPERTY INFORMATION
物件紹介
グレイス麹町は、千代田区二番町に所在するオフィスビルです。構造は鉄骨(S造)を採用しており、地上12階・地下1階建の規模を有しています。交通利便性に非常に優れており、東京地下鉄有楽町線麹町駅より徒歩2分、南北線市ケ谷駅より徒歩6分、JR中央本線四ツ谷駅より徒歩8分、東京地下鉄半蔵門線半蔵門駅より徒歩9分の位置にあります。複数の路線と駅が利用可能であるため、都内主要エリアへダイレクトにアクセス可能な優れた機動性を備えています。竣工年月は2022年1月であり、企業の活動拠点として十分な機能を備えた建築物です。
■ 洗練された意匠と機能性を兼ね備えた外観・エントランス
本物件の外観は、千代田区二番町という格式高いビジネス街に調和する、洗練されたデザインが施されています。エントランス部分は、来訪者に対して企業の信頼性と品格を印象づける落ち着いた空間構成となっており、プロフェッショナルなビジネスシーンを演出します。地上12階建ての端正なフォルムは、周辺環境の中で独自の存在感を放ちながらも、景観に溶け込む落ち着きを保っています。館内には2基のエレベーターが設置されており、多層階にわたるオフィス運用における円滑な縦移動を支えるとともに、日々の業務における移動効率を向上させます。
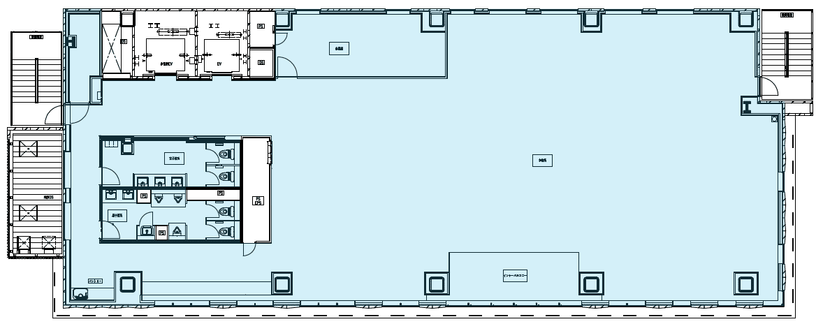
■ 柔軟なレイアウトを可能にする高品質な執務空間
基準階面積は約127坪を確保しており、効率的なオフィスレイアウトを求める企業のニーズに応える広さを有しています。天井高はスラブ下で3,345mm、大梁下でも2,400mmのゆとりある高さを実現しており、開放感のある健やかな執務環境を提供します。基準階オフィスには配線の自由度を飛躍的に高めるOAフロアが完備されているため、多様な情報通信機器やオフィス什器の配置に柔軟に対応可能です。空調方式は、各エリアで細やかな調整が可能な個別タイプを採用しており、就業者の快適性を維持しながら、オフィス運営におけるエネルギー効率の最適化を図ることができます。
■ ビジネスの利便性を高める充実した周辺環境
本物件が位置する千代田区二番町は、官公庁や大使館が点在する日本の中枢とも言えるエリアであり、高い社会的信用を享受できるビジネス環境が整っています。徒歩圏内には主要な金融機関や郵便局、公共施設が充実しており、事務手続きや外部との打ち合わせを効率的に進めることが可能です。また、周辺には飲食店や利便施設も多く、従業員の休憩時間や福利厚生の面でも優れた環境を提供します。4駅4路線を利用できる立地は、取引先への訪問や従業員の通勤における時間的コストを大幅に削減し、業務効率の最大化に大きく寄与します。
■ 堅牢な構造と安心のビジネス継続性能
建物の構造には鉄骨(S造)が採用されており、確かな技術に基づいた設計によってビジネスの継続性を支える基盤が構築されています。延床面積は約1,588坪に及び、建物全体にわたって安定した品質の空間が維持されています。千代田区の良好な地盤の上に建つ本物件は、企業の重要な資産と人材を守るための基本的な安全性能を十分に備えています。非常時においても事業活動が停滞しないよう配慮された設計思想は、リスク管理を重視する企業の意思決定層にとって、長期的な拠点選びにおける極めて重要な判断材料となります。
グレイス麹町は、都心有数のビジネス拠点である千代田区において、優れた交通アクセスと機能的な執務環境を両立させた物件です。約127坪の使い勝手の良い基準階面積や、2022年1月竣工の安定した建物スペックは、企業の持続的な成長を支える強固な基盤となります。洗練された外観デザインと効率的な設備仕様を融合させた本物件は、高い生産性が求められるプロフェッショナルなビジネス環境の構築に最適です。卓越した立地条件と確かな建物品質が、企業のさらなる発展に寄与する価値ある選択肢を提供します。
物件情報に関する表示ルールについては当サイトのご利用規約をお読みください。
ご利用規約CONTACT US お問い合わせ
オフィスをお探しのみなさま
掲載中の物件以外にも、多数物件を取り扱っております。お電話またはお問い合わせフォームからお気軽にお問い合わせください。



