PROPERTY INFORMATION
森紙業神田ビル
| 物件名 | 森紙業神田ビル |
|---|---|
| 所在地 |
2丁目
11-6
MAP
|
| 交通 |
徒歩5分
徒歩5分
|
| 竣工年月 | 2022年1月 |
| リニューアル | --- |
| 構造・規模 | 鉄骨(S造) 地上:8階、地下:1階 |
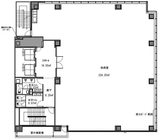
| 基準階面積(坪) | 103.04坪 |
| 天井高 | 2700mm |
| 空調 | 個別タイプ |
| エレベーター | 2 基 |
| 駐車場 | --- |
| 耐震性能 | --- |
| 取引態様 | 媒介 |
1 / 10
google map
ハザードマップを見る
物件紹介
森紙業神田ビルは東京都千代田区神田錦町2丁目に所在しており、基準階面積は 103.04 坪、延床面積は 1,062.00坪の、オフィスビルです。東京地下鉄東西線の竹橋駅から徒歩5分です。2022年1月竣工で、建物の構造は、鉄骨(S造)で、地上8階・地下1階建です。基準階オフィスの空調方式は個別タイプ、天井高は2700mm、床仕様はOA床、エレベーターは2基設置されております。
このエリアは、歴史的な建物や文化施設が多く、ビジネスと文化が融合した魅力的な地域です。交通の便が良く、周辺には飲食店やカフェも充実しており、働く人々にとって快適な環境が整っています。
物件情報に関する表示ルールについては当サイトのご利用規約をお読みください。
ご利用規約CONTACT US お問い合わせ
オフィスをお探しのみなさま
掲載中の物件以外にも、多数物件を取り扱っております。お電話またはお問い合わせフォームからお気軽にお問い合わせください。



