PROPERTY INFORMATION
S-GATE 秋葉原
| 物件名 | S-GATE 秋葉原 |
|---|---|
| 所在地 |
2丁目
4-6
MAP
|
| 交通 |
徒歩5分
徒歩5分
徒歩8分
徒歩8分
徒歩7分
|
| 竣工年月 | 2017年9月 |
| リニューアル | --- |
| 構造・規模 | 鉄骨(S造) 地上:8階 |
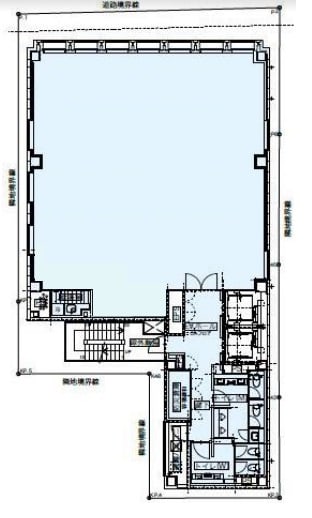
| 基準階面積(坪) | 74.52坪 |
| 天井高 | 2800mm |
| 空調 | 個別タイプ |
| エレベーター | 2 基 |
| 駐車場 | 2 台 |
| 耐震性能 | --- |
| 取引態様 | 媒介 |
1 / 10
google map
ハザードマップを見る
物件情報に関する表示ルールについては当サイトのご利用規約をお読みください。
ご利用規約CONTACT US お問い合わせ
オフィスをお探しのみなさま
掲載中の物件以外にも、多数物件を取り扱っております。お電話またはお問い合わせフォームからお気軽にお問い合わせください。



