PROPERTY INFORMATION
FTK秋葉原
| 物件名 | FTK秋葉原 |
|---|---|
| 所在地 |
3丁目
13-8
MAP
|
| 交通 |
徒歩3分
徒歩6分
|
| 竣工年月 | 2024年8月 |
| リニューアル | --- |
| 構造・規模 | 鉄骨(S造) 地上:10階 |
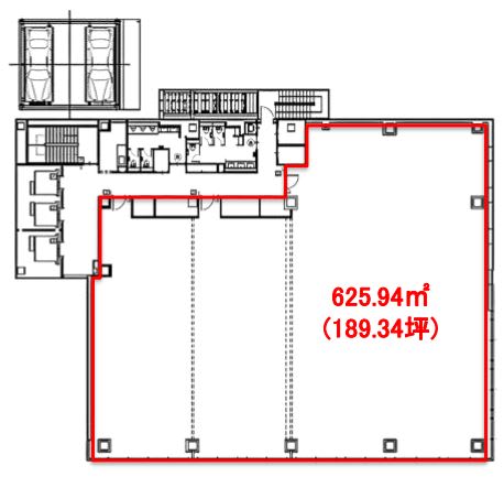
| 基準階面積(坪) | 189.34坪 |
| 天井高 | 2800mm |
| 空調 | 個別タイプ |
| エレベーター | 3 基 |
| 駐車場 | 32 台 |
| 耐震性能 | --- |
| 取引態様 | 媒介 |
1 / 10
物件紹介
FTK秋葉原は、東京都千代田区外神田3丁目に所在するオフィスビルです。本物件は鉄骨(S造)の構造を採用しており、地上10階建の規模を有しています。交通の利便性においては、東京地下鉄銀座線末広町駅より徒歩3分、JR山手線秋葉原駅より徒歩6分の距離に位置しています。2024年8月に竣工し、延床面積は約2,534坪を確保しています。複数の駅と路線が利用可能な立地は、都内主要拠点への円滑なアクセスを可能にします。
■ 洗練された意匠とビジネスを支える機能的な設計
本物件の外観は、鉄骨(S造)による強固な構造と調和のとれた意匠で構成されています。地上10階建の端正なフォルムは、周辺の景観と一体化しつつも、ビジネス拠点としての存在感を明確に示しています。エントランスエリアは、来訪者に対して企業の信頼性を印象づける落ち着きのある空間として設計されています。
■ 効率的な業務を可能にする約189坪の基準階オフィス
基準階の面積は約189坪を確保しており、柱の配置を工夫した効率的な空間構成を実現しています。天井高は2,800mmを確保することで、開放感のある執務環境を提供します。床面にはOAフロアを完備しており、煩雑になりがちな配線を床下に収納することで、自由度の高いデスクレイアウトを可能にします。個別タイプの空調方式を採用しているため、エリアごとの細やかな温度設定ができ、快適な室内環境を維持することができます。
■ 多様なビジネスニーズに応える周辺環境と利便性
本物件が位置する外神田エリアは、多様な産業が集積するビジネス地区としての性質を持っています。近隣には複数の金融機関や郵便局が点在しており、日常的な業務を迅速に処理するための基盤が整っています。また、周辺の飲食施設やコンビニエンスストアの存在は、従業員の利便性を高め、就業環境の充実を支援します。秋葉原駅からはJR各線やつくばエクスプレスの利用も可能であり、広域からの通勤や営業活動において優れた効率性を発揮します。
■ 安全性と機能性を両立した強固な耐震構造
本物件は耐震性能を備えた鉄骨(S造)の構造を採用しており、自然災害時における安全性を確保しています。建物内には3基のエレベーターを設置し、各階への迅速かつ円滑な移動を支えています。確かな建築技術に基づいた設計は、企業の資産維持と従業員の安全を考慮したものです。安定したインフラ設備と堅牢な構造により、長期間にわたって安心して事業を継続できる環境が整えられています。
FTK秋葉原は、都心におけるビジネスの加速を支援する充実した設備と優れた交通利便性を兼ね備えた拠点です。約189坪の機能的なフロアプレートと天井高2,800mmの快適な空間は、多様なワークスタイルに対応可能な環境を提供します。千代田区外神田という戦略的な立地と、堅牢な構造に裏打ちされた本物件は、企業の安定した成長と事業拡大を支えるための重要な役割を果たします。
物件情報に関する表示ルールについては当サイトのご利用規約をお読みください。
ご利用規約CONTACT US お問い合わせ
オフィスをお探しのみなさま
掲載中の物件以外にも、多数物件を取り扱っております。お電話またはお問い合わせフォームからお気軽にお問い合わせください。



