PROPERTY INFORMATION
フロントプレイス千代田一番町
| 物件名 | フロントプレイス千代田一番町 |
|---|---|
| 所在地 |
23-3(地番)
MAP
|
| 交通 |
徒歩2分
|
| 竣工年月 | 2024年9月 |
| リニューアル | --- |
| 構造・規模 | 鉄骨(S造) 地上:11階 |
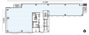
| 基準階面積(坪) | 150.5坪 |
| 天井高 | 2700mm |
| 空調 | その他 |
| エレベーター | 2 基 |
| 駐車場 | 有り |
| 耐震性能 | --- |
| 取引態様 | 媒介 |
1 / 10
物件紹介
フロントプレイス千代田一番町は、東京都千代田区一番町に所在するオフィスビルです。本物件は鉄骨(S造)の地上11階建の構造を有し、竣工年月は2024年9月です。交通アクセスについては、東京地下鉄半蔵門線半蔵門駅より徒歩2分の場所に位置しています。延床面積は約2,062坪を確保しており、一番町エリアにおけるビジネスの拠点としての風格を備えています。
■ 重厚感と視認性を兼ね備えた建築意匠
外観は周囲の街並みと調和しながらも、独自の存在感を放つ洗練されたデザインを採用しています。エントランスエリアは開放感のある空間となっており、訪れる来客に対して企業の信頼性を象徴する格調高い印象を与えます。建物の外装材や照明計画に至るまで、品格を重視した素材が選定されており、企業のブランドイメージを向上させる意匠性が随所に反映されています。安定した採光を確保する窓割りが、建物全体の美観を形成しています。
■ 高い機能性を追求した執務空間
基準階面積は約150坪を確保し、効率的なオフィスレイアウトを可能とする無柱空間が広がります。天井高は2,700mmに設定されており、開放感のある快適な就業環境を提供します。床面にはOAフロアを完備しているため、配線を柔軟に変更することが可能であり、多様なオフィス環境の構築を支援します。エレベーターは2基設置されており、建物内の移動もスムーズに行うことができます。これらのスペックは、企業の業務効率を向上するための基盤となります。
■ 千代田区一番町の利便性に優れたビジネス環境
本物件が所在する千代田区一番町は、多くの企業や官公庁、大使館が集積する静謐かつ利便性の高い地域です。徒歩2分の距離にある東京地下鉄半蔵門線半蔵門駅を利用することで、JR東京駅や大手町駅などの主要ビジネスエリアへダイレクトにアクセスが可能です。周辺には金融機関や郵便局、飲食店などの利便施設が充実しており、日々の業務を円滑に進めるための環境が整っています。落ち着いた環境とビジネス機能が融合したエリア特性は、社員の就業意欲の向上にも寄与します。
■ 鉄骨(S造)による強固な建物構造と信頼性
構造面では鉄骨(S造)を採用し、堅牢な造りを実現しています。建物の安全性に関する客観的な事実に裏打ちされたスペックにより、長期間にわたる事業継続を支える環境を提供します。空調や照明などの設備機器についても、エネルギー効率に配慮した仕様が導入されており、環境負荷の低減と経済性の両立を図っています。企業の社会的責任を果たすための基盤として、安定したインフラ設備が整えられており、万一の事態においてもビジネスへの影響を最小限に抑える機能性を備えています。
本物件は、都心有数の格式高い立地と充実した設備仕様を兼ね備えています。交通アクセスや周辺環境の利便性は、企業の競争力を高めるための重要な要素のひとつとなります。
物件情報に関する表示ルールについては当サイトのご利用規約をお読みください。
ご利用規約CONTACT US お問い合わせ
オフィスをお探しのみなさま
掲載中の物件以外にも、多数物件を取り扱っております。お電話またはお問い合わせフォームからお気軽にお問い合わせください。



