PROPERTY INFORMATION
人形町センタービル
| 物件名 | 人形町センタービル |
|---|---|
| 所在地 |
1丁目
4-10
MAP
|
| 交通 |
徒歩4分
徒歩2分
徒歩9分
|
| 竣工年月 | 1994年3月 |
| リニューアル | --- |
| 構造・規模 | 鉄骨鉄筋コンクリート(SRC造) 地上:9階、地下:2階 |
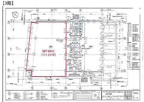
| 基準階面積(坪) | 111.21坪 |
| 天井高 | 2530mm |
| 空調 | 個別タイプ |
| エレベーター | 2 基 |
| 駐車場 | 29 台 |
| 耐震性能 | --- |
| 取引態様 | 媒介 |
1 / 10
google map
ハザードマップを見る
物件紹介
人形町センタービルは東京都中央区日本橋人形町1丁目に所在しており、基準階面積は 111.21 坪、延床面積は 1,978.21坪の、オフィスビルです。東京地下鉄日比谷線の人形町駅からは徒歩2分で、交通利便性に優れています。1994年3月竣工で、建物の構造は、鉄骨鉄筋コンクリート(SRC造)で、地上9階・地下2階建です。基準階オフィスの空調方式は個別タイプ、天井高は2530mm、床仕様はOA床、エレベーターは2基設置されております。
このエリアは、歴史的な建物や伝統的な商店が多く、観光客にも人気があります。また、飲食店が充実しており、グルメスポットとしても知られています。
物件情報に関する表示ルールについては当サイトのご利用規約をお読みください。
ご利用規約CONTACT US お問い合わせ
オフィスをお探しのみなさま
掲載中の物件以外にも、多数物件を取り扱っております。お電話またはお問い合わせフォームからお気軽にお問い合わせください。



