PROPERTY INFORMATION
日本橋プラザビル
| 物件名 | 日本橋プラザビル |
|---|---|
| 所在地 |
2丁目
3-4
MAP
|
| 交通 |
徒歩1分
徒歩1分
徒歩1分
徒歩4分
|
| 竣工年月 | 1988年12月 |
| リニューアル | --- |
| 構造・規模 | 鉄骨(S造) 鉄骨鉄筋コンクリート(SRC造) 地上:15階、地下:3階 |
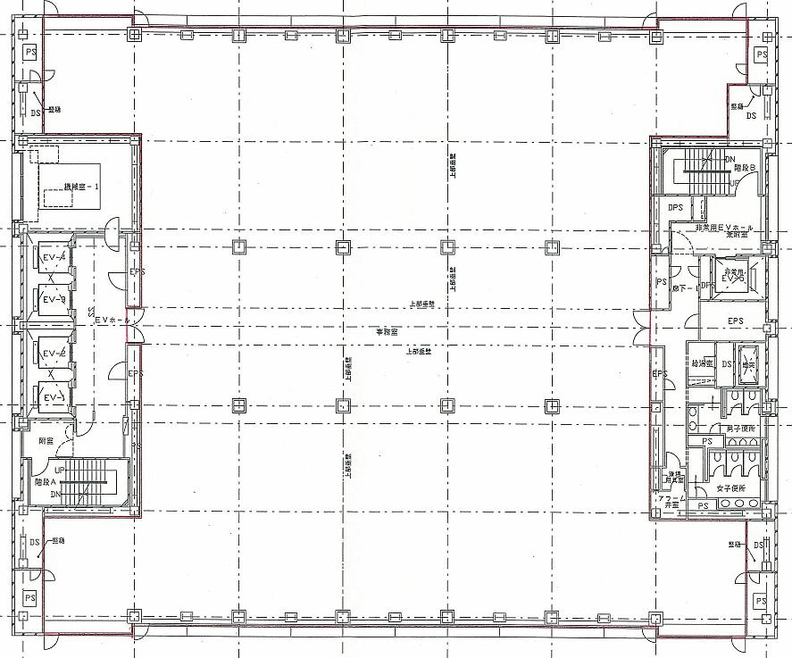
| 基準階面積(坪) | 348.77坪 |
| 天井高 | 2500mm |
| 空調 | セントラル+個別 |
| エレベーター | 5 基 |
| 駐車場 | 130 台 |
| 耐震性能 | --- |
| 取引態様 | 媒介 |
1 / 10
google map
ハザードマップを見る
物件紹介
日本橋プラザビルは東京都中央区日本橋2丁目に所在しており、基準階面積は 348.77 坪、延床面積は 9,187.22 坪の、大型オフィスビルです。東京地下鉄東西線の日本橋駅からは徒歩1分で、交通利便性に優れています。1988年12月竣工で、建物の構造は、鉄骨(S造)・鉄骨鉄筋コンクリート(SRC造)で、地上15階・地下3階建です。基準階オフィスの空調方式はセントラル+個別、天井高は2500mm、床仕様はOA床、エレベーターは5基設置されております。
このエリアは、歴史的な建物や名所が多く、観光スポットとしても人気があります。また、商業施設や飲食店が充実しており、ビジネスパーソンにとっても便利な環境です。
物件情報に関する表示ルールについては当サイトのご利用規約をお読みください。
ご利用規約CONTACT US お問い合わせ
オフィスをお探しのみなさま
掲載中の物件以外にも、多数物件を取り扱っております。お電話またはお問い合わせフォームからお気軽にお問い合わせください。



