PROPERTY INFORMATION
コア京橋ビル
| 物件名 | コア京橋ビル |
|---|---|
| 所在地 |
2丁目
21-2
MAP
|
| 交通 |
徒歩2分
徒歩2分
徒歩4分
徒歩8分
|
| 竣工年月 | 1998年4月 |
| リニューアル | --- |
| 構造・規模 | 鉄骨鉄筋コンクリート(SRC造) 地上:9階、地下:1階 |
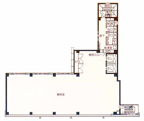
| 基準階面積(坪) | 102.5坪 |
| 天井高 | 2,450mm |
| 空調 | 個別タイプ |
| エレベーター | 2 基 |
| 駐車場 | 有り |
| 耐震性能 | --- |
| 取引態様 | 媒介 |
1 / 10
google map
ハザードマップを見る
物件紹介
コア京橋ビルは東京都中央区八丁堀2丁目に所在しており、基準階面積は 102.50 坪、京葉線の八丁堀駅からは徒歩2分で、交通利便性に優れています。1998年4月竣工で、建物の構造は、鉄骨鉄筋コンクリート(SRC造)となっており、地上9階・地下1階建です。基準階オフィスの空調方式は個別タイプ、天井高は2,450mm、エレベーターは2基設置されております。
このエリアは、商業施設や飲食店が充実しており、ビジネスパーソンにとって便利な環境です。さらに、歴史的な建物や観光スポットも多く、散策を楽しむことができます。
物件情報に関する表示ルールについては当サイトのご利用規約をお読みください。
ご利用規約CONTACT US お問い合わせ
オフィスをお探しのみなさま
掲載中の物件以外にも、多数物件を取り扱っております。お電話またはお問い合わせフォームからお気軽にお問い合わせください。



