PROPERTY INFORMATION
フォーリッチビル
| 物件名 | フォーリッチビル |
|---|---|
| 所在地 |
10-6
MAP
|
| 交通 |
徒歩4分
徒歩3分
徒歩5分
徒歩6分
徒歩8分
|
| 竣工年月 | 1992年11月 |
| リニューアル | --- |
| 構造・規模 | 鉄骨鉄筋コンクリート(SRC造) 地上:10階、地下:2階 |
| 基準階面積(坪) | 143.13坪 |
| 天井高 | 2500mm |
| 空調 | 個別タイプ |
| エレベーター | 2 基 |
| 駐車場 | 13 台 |
| 耐震性能 | --- |
| 取引態様 | 媒介 |
1 / 10
google map
ハザードマップを見る
物件紹介
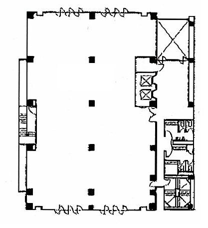
フォーリッチビルは東京都中央区日本橋大伝馬町に所在しており、基準階面積は 143.13 坪、東京地下鉄日比谷線の小伝馬町駅からは徒歩3分で、交通利便性に優れています。1992年11月竣工で、建物の構造は、鉄骨鉄筋コンクリート(SRC造)で、地上10階・地下2階建です。基準階オフィスの空調方式は個別タイプ、天井高は2500mm、床仕様はOA床、エレベーターは2基設置されております。
このエリアは、歴史的な建物や商業施設が多く、観光客にも人気があります。また、ビジネス街としても発展しており、多くの企業がオフィスを構えています。
物件情報に関する表示ルールについては当サイトのご利用規約をお読みください。
ご利用規約CONTACT US お問い合わせ
オフィスをお探しのみなさま
掲載中の物件以外にも、多数物件を取り扱っております。お電話またはお問い合わせフォームからお気軽にお問い合わせください。



