PROPERTY INFORMATION
Daiwa銀座ビル
| 物件名 | Daiwa銀座ビル |
|---|---|
| 所在地 |
6丁目
2-1
MAP
|
| 交通 |
徒歩3分
徒歩5分
徒歩3分
徒歩3分
徒歩5分
徒歩5分
|
| 竣工年月 | 1963年7月 |
| リニューアル | 2003年 |
| 構造・規模 | 鉄骨鉄筋コンクリート(SRC造) 地上:12階、地下:3階 |
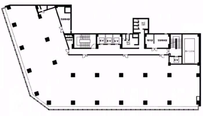
| 基準階面積(坪) | 224.07坪 |
| 天井高 | 2500mm |
| 空調 | 個別タイプ |
| エレベーター | 3 基 |
| 駐車場 | 有り |
| 耐震性能 | --- |
| 取引態様 | 媒介 |
1 / 10
google map
ハザードマップを見る
物件紹介
Daiwa銀座ビルは東京都中央区銀座6丁目に所在しており、基準階面積は 224.07 坪、延床面積は 3,873.07 坪の、大型オフィスビルです。東京地下鉄丸ノ内線の銀座駅からは徒歩3分で、交通利便性に優れています。1963年7月竣工で、2003年にリニューアル済み、建物の構造は、鉄骨鉄筋コンクリート(SRC造)で、地上12階・地下3階建です。基準階オフィスの空調方式は個別タイプ、天井高は2500mm、床仕様はOA床、エレベーターは3基設置されております。
このエリアは、ショッピングやグルメの名所が多く、観光客にも人気があります。また、ビジネス街としても発展しており、多くの企業がオフィスを構えています。
物件情報に関する表示ルールについては当サイトのご利用規約をお読みください。
ご利用規約CONTACT US お問い合わせ
オフィスをお探しのみなさま
掲載中の物件以外にも、多数物件を取り扱っております。お電話またはお問い合わせフォームからお気軽にお問い合わせください。



