PROPERTY INFORMATION
JRE茅場町二丁目ビル
| 物件名 | JRE茅場町二丁目ビル |
|---|---|
| 所在地 |
2丁目
13-13
MAP
|
| 交通 |
徒歩1分
徒歩1分
|
| 竣工年月 | 1991年4月 |
| リニューアル | 2008年7月 |
| 構造・規模 | 鉄骨鉄筋コンクリート(SRC造) 地上:9階、地下:1階 |
| 基準階面積(坪) | 167.35坪 |
| 天井高 | 2600mm |
| 空調 | 個別タイプ |
| エレベーター | 2 基 |
| 駐車場 | 有り |
| 耐震性能 | --- |
| 取引態様 | 媒介 |
1 / 10
google map
ハザードマップを見る
物件紹介
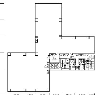
JRE茅場町二丁目ビルは東京都中央区日本橋茅場町2丁目に所在しており、基準階面積は 167.35 坪、延床面積は 1,707.94坪の、オフィスビルです。東京地下鉄日比谷線の茅場町駅からは徒歩1分で、交通利便性に優れています。1991年4月竣工で、2008年7月にリニューアル済み、建物の構造は、鉄骨鉄筋コンクリート(SRC造)で、地上9階・地下1階建です。基準階オフィスの空調方式は個別タイプ、天井高は2600mm、床仕様はOA床、エレベーターは2基設置されております。
このエリアは、歴史的な建物と現代的なオフィスビルが共存しており、ビジネスと文化が融合した魅力的な地域です。飲食店やカフェも多く、働く人々にとって利便性の高い環境が整っています。
物件情報に関する表示ルールについては当サイトのご利用規約をお読みください。
ご利用規約CONTACT US お問い合わせ
オフィスをお探しのみなさま
掲載中の物件以外にも、多数物件を取り扱っております。お電話またはお問い合わせフォームからお気軽にお問い合わせください。



