PROPERTY INFORMATION
住友生命日本橋富沢町ビル
| 物件名 | 住友生命日本橋富沢町ビル |
|---|---|
| 所在地 |
9-19
MAP
|
| 交通 |
徒歩4分
徒歩4分
徒歩5分
|
| 竣工年月 | 1984年10月 |
| リニューアル | --- |
| 構造・規模 | 鉄骨鉄筋コンクリート(SRC造) 地上:8階、地下:1階 |
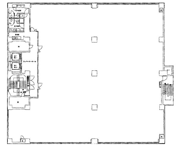
| 基準階面積(坪) | 233.81坪 |
| 天井高 | 2440mm |
| 空調 | 個別タイプ |
| エレベーター | 2 基 |
| 駐車場 | 20 台 |
| 耐震性能 | --- |
| 取引態様 | 媒介 |
1 / 10
google map
ハザードマップを見る
物件紹介
住友生命日本橋富沢町ビルは東京都中央区日本橋富沢町に所在しており、基準階面積は 233.81 坪、延床面積は 2,142.51坪の、オフィスビルです。東京地下鉄日比谷線の人形町駅からは徒歩4分で、交通利便性に優れています。1984年10月竣工で、建物の構造は、鉄骨鉄筋コンクリート(SRC造)となっており、地上8階・地下1階建です。基準階オフィスの空調方式は個別タイプ、天井高は2440mm、床仕様はOA床、エレベーターは2基設置されております。
このエリアは、歴史的な建物や商店街が多く、観光地としても人気があります。飲食店やカフェが充実しており、ビジネスマンや観光客にとって便利な場所です。
物件情報に関する表示ルールについては当サイトのご利用規約をお読みください。
ご利用規約CONTACT US お問い合わせ
オフィスをお探しのみなさま
掲載中の物件以外にも、多数物件を取り扱っております。お電話またはお問い合わせフォームからお気軽にお問い合わせください。



