PROPERTY INFORMATION
日本ビルディング本館
| 物件名 | 日本ビルディング本館 |
|---|---|
| 所在地 |
1丁目
2-4
MAP
|
| 交通 |
徒歩1分
徒歩1分
徒歩4分
徒歩4分
徒歩4分
|
| 竣工年月 | 1958年5月 |
| リニューアル | --- |
| 構造・規模 | 鉄筋コンクリート(RC造) 地上:7階、地下:1階 |
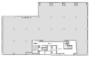
| 基準階面積(坪) | 210.13坪 |
| 天井高 | 2475mm |
| 空調 | 個別タイプ |
| エレベーター | 2 基 |
| 駐車場 | --- |
| 耐震性能 | --- |
| 取引態様 | 媒介 |
1 / 10
google map
ハザードマップを見る
物件紹介
日本ビルディング本館は東京都中央区日本橋茅場町1丁目に所在しており、基準階面積は 210.13 坪、東京地下鉄東西線の茅場町駅からは徒歩1分で、交通利便性に優れています。1958年5月竣工で、建物の構造は、鉄筋コンクリート(RC造)で、地上7階・地下1階建です。基準階オフィスの空調方式は個別タイプ、天井高は2475mm、床仕様はOA床、エレベーターは2基設置されております。
このエリアは、歴史的な建物が多く、商業施設や飲食店が充実しているため、ビジネスや観光に適しています。さらに、川沿いの景観が美しく、散策やリラックスする場所としても人気があります。
物件情報に関する表示ルールについては当サイトのご利用規約をお読みください。
ご利用規約CONTACT US お問い合わせ
オフィスをお探しのみなさま
掲載中の物件以外にも、多数物件を取り扱っております。お電話またはお問い合わせフォームからお気軽にお問い合わせください。



