PROPERTY INFORMATION
Hi-gs日本橋 (旧:東日本銀行本店ビル建替プロジェクト)
| 物件名 | Hi-gs日本橋 (旧:東日本銀行本店ビル建替プロジェクト) |
|---|---|
| 所在地 |
3丁目
11-2
MAP
|
| 交通 |
徒歩4分
徒歩4分
徒歩4分
徒歩5分
徒歩6分
徒歩7分
|
| 竣工年月 | 2025年6月 |
| リニューアル | --- |
| 構造・規模 | 鉄骨(S造) 鉄筋コンクリート(RC造) 地上:12階、地下:1階 |
| 基準階面積(坪) | 215.04坪 |
| 天井高 | 2800mm |
| 空調 | 個別タイプ |
| エレベーター | 4 基 |
| 駐車場 | 有り |
| 耐震性能 | --- |
| 取引態様 | 媒介 |
1 / 10
google map
ハザードマップを見る
物件紹介
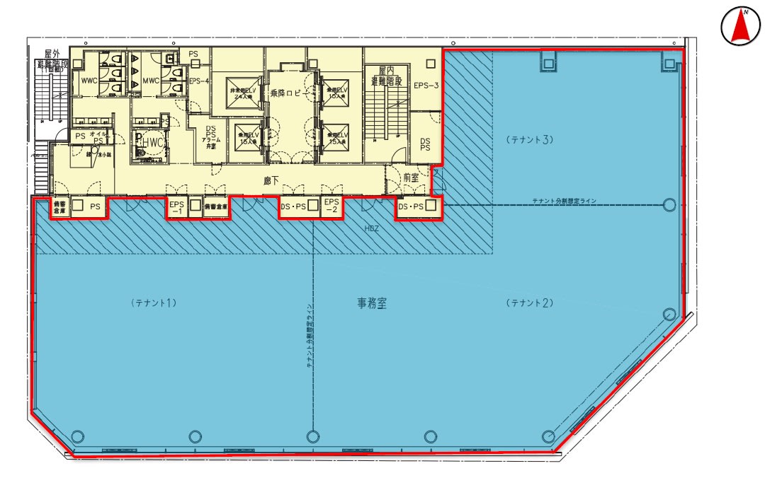
(仮称)東日本銀行本店ビル建替プロジェクトは東京都中央区日本橋3丁目に所在しており、基準階面積は 215.04 坪、延床面積は 3,487.83 坪の、大型オフィスビルです。東京地下鉄銀座線の日本橋駅からは徒歩4分で、交通利便性に優れています。2025年6月竣工で、建物の構造は、鉄骨(S造)・鉄筋コンクリート(RC造)で、地上12階・地下1階建です。基準階オフィスの空調方式は個別タイプ、天井高は2800mm、床仕様はOA床、エレベーターは4基設置されております。
このエリアは、歴史的な建物や商業施設が多く、観光客にも人気があります。また、ビジネス街としても発展しており、多くの企業がオフィスを構えています。
物件情報に関する表示ルールについては当サイトのご利用規約をお読みください。
ご利用規約CONTACT US お問い合わせ
オフィスをお探しのみなさま
掲載中の物件以外にも、多数物件を取り扱っております。お電話またはお問い合わせフォームからお気軽にお問い合わせください。



