PROPERTY INFORMATION
八重洲通フィルテラス
| 物件名 | 八重洲通フィルテラス |
|---|---|
| 所在地 |
1丁目
2-8
MAP
|
| 交通 |
徒歩5分
徒歩6分
徒歩7分
徒歩8分
徒歩8分
山手線
東京駅
徒歩10分
|
| 竣工年月 | 2025年1月 |
| リニューアル | --- |
| 構造・規模 | 鉄骨(S造) 地上:12階、地下:1階 |
| 基準階面積(坪) | 178.24坪 |
| 天井高 | 2,700mm |
| 空調 | 個別タイプ |
| エレベーター | 3 基 |
| 駐車場 | 22 台 |
| 耐震性能 | --- |
| 取引態様 | 媒介 |
1 / 10
google map
ハザードマップを見る
物件紹介
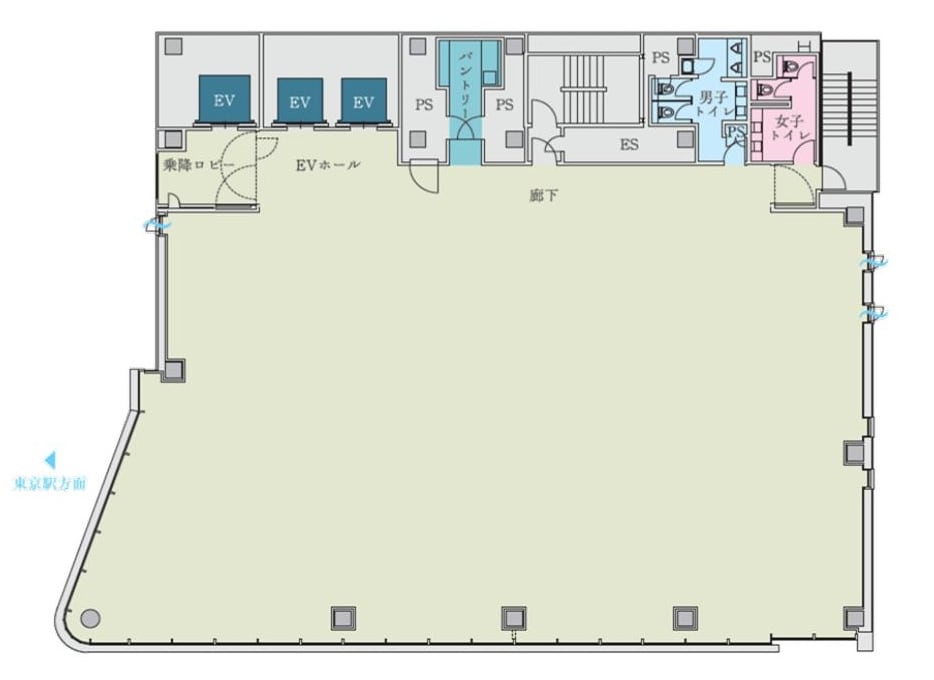
八重洲通フィルテラスは東京都中央区八丁堀1丁目に所在しており、基準階面積は 178.24 坪、延床面積は 2,434.44坪の、オフィスビルです。東京地下鉄日比谷線の八丁堀駅から徒歩5分です。2025年1月竣工で、建物の構造は、鉄骨(S造)となっており、地上12階・地下1階建です。基準階オフィスの空調方式は個別タイプ、天井高は2,700mm、床仕様はOA床、エレベーターは3基設置されております。
このエリアは、ビジネス街として知られ、オフィスビルが多く立ち並んでいます。交通アクセスが良く、飲食店や商業施設も充実しています。
物件情報に関する表示ルールについては当サイトのご利用規約をお読みください。
ご利用規約CONTACT US お問い合わせ
オフィスをお探しのみなさま
掲載中の物件以外にも、多数物件を取り扱っております。お電話またはお問い合わせフォームからお気軽にお問い合わせください。



