PROPERTY INFORMATION
芝一丁目ビル
| 物件名 | 芝一丁目ビル |
|---|---|
| 所在地 |
1丁目
12-7
MAP
|
| 交通 |
徒歩10分
徒歩8分
徒歩8分
徒歩8分
|
| 竣工年月 | 1992年11月 |
| リニューアル | --- |
| 構造・規模 | 鉄骨鉄筋コンクリート(SRC造) 地上:8階、地下:1階 |
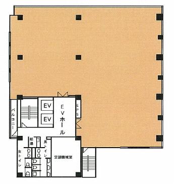
| 基準階面積(坪) | 155.53坪 |
| 天井高 | 2550mm |
| 空調 | セントラル+個別 |
| エレベーター | 2 基 |
| 駐車場 | 14 台 |
| 耐震性能 | --- |
| 取引態様 | 媒介 |
1 / 10
google map
ハザードマップを見る
物件紹介
芝一丁目ビルは東京都港区芝1丁目に所在しており、基準階面積は 155.53 坪、延床面積は 1,707.88坪の、オフィスビルです。山手線の浜松町駅から徒歩8分です。1992年11月竣工で、建物の構造は、鉄骨鉄筋コンクリート(SRC造)で、地上8階・地下1階建です。基準階オフィスの空調方式はセントラル+個別、天井高は2550mm、床仕様はOA床、エレベーターは2基設置されております。
このエリアは、ビジネス街としての利便性が高く、飲食店や商業施設も充実しています。さらに、歴史的な名所や公園も多く、自然と文化が調和した環境です。
物件情報に関する表示ルールについては当サイトのご利用規約をお読みください。
ご利用規約CONTACT US お問い合わせ
オフィスをお探しのみなさま
掲載中の物件以外にも、多数物件を取り扱っております。お電話またはお問い合わせフォームからお気軽にお問い合わせください。



