PROPERTY INFORMATION
ピアシティ芝浦ビル
| 物件名 | ピアシティ芝浦ビル |
|---|---|
| 所在地 |
3丁目
18-1
MAP
|
| 交通 |
徒歩12分
徒歩12分
徒歩12分
徒歩3分
|
| 竣工年月 | 1994年7月 |
| リニューアル | --- |
| 構造・規模 | 鉄骨(S造) 鉄骨鉄筋コンクリート(SRC造) 地上:16階、地下:3階 |
| 基準階面積(坪) | 274.9坪 |
| 天井高 | 2700mm |
| 空調 | セントラル+個別 |
| エレベーター | 4 基 |
| 駐車場 | 10 台 |
| 耐震性能 | --- |
| 取引態様 | 媒介 |
1 / 10
google map
ハザードマップを見る
物件紹介
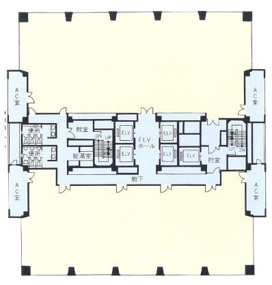
ピアシティ芝浦ビルは東京都港区海岸3丁目に所在しており、基準階面積は 274.90 坪、延床面積は 8,581.90 坪の、大型オフィスビルです。ゆりかもめの芝浦ふ頭駅から徒歩3分です。1994年7月竣工で、建物の構造は、鉄骨(S造)・鉄骨鉄筋コンクリート(SRC造)で、地上16階・地下3階建です。基準階オフィスの空調方式はセントラル+個別、天井高は2700mm、床仕様はOA床、エレベーターは4基設置されております。
このエリアは、海に近く、眺望が良いことが特徴です。また、商業施設や飲食店が多く、ビジネスパーソンにとって便利な環境が整っています。
物件情報に関する表示ルールについては当サイトのご利用規約をお読みください。
ご利用規約CONTACT US お問い合わせ
オフィスをお探しのみなさま
掲載中の物件以外にも、多数物件を取り扱っております。お電話またはお問い合わせフォームからお気軽にお問い合わせください。



