PROPERTY INFORMATION
ランディック第2新橋ビル
| 物件名 | ランディック第2新橋ビル |
|---|---|
| 所在地 |
3丁目
7-1
MAP
|
| 交通 |
徒歩5分
徒歩11分
徒歩9分
徒歩5分
|
| 竣工年月 | 1978年12月 |
| リニューアル | 1999年 |
| 構造・規模 | 鉄骨鉄筋コンクリート(SRC造) 地上:10階、地下:1階 |
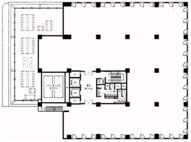
| 基準階面積(坪) | 250.47坪 |
| 天井高 | 2450mm |
| 空調 | 個別タイプ |
| エレベーター | 2 基 |
| 駐車場 | 24 台 |
| 耐震性能 | --- |
| 取引態様 | 媒介 |
1 / 10
google map
ハザードマップを見る
物件紹介
ランディック第2新橋ビルは東京都港区西新橋3丁目に所在しており、基準階面積は 250.47 坪、延床面積は 2,598.31坪の、オフィスビルです。都営三田線の御成門駅から徒歩5分です。1978年12月竣工で、1999年にリニューアル済み、建物の構造は、鉄骨鉄筋コンクリート(SRC造)で、地上10階・地下1階建です。基準階オフィスの空調方式は個別タイプ、天井高は2450mm、床仕様はOA床、エレベーターは2基設置されております。
このエリアは、ビジネス街として知られており、多くの企業がオフィスを構えています。また、飲食店やカフェも充実しており、働く人々にとって便利な環境が整っています。
物件情報に関する表示ルールについては当サイトのご利用規約をお読みください。
ご利用規約CONTACT US お問い合わせ
オフィスをお探しのみなさま
掲載中の物件以外にも、多数物件を取り扱っております。お電話またはお問い合わせフォームからお気軽にお問い合わせください。



