PROPERTY INFORMATION
フロンティア御成門
| 物件名 | フロンティア御成門 |
|---|---|
| 所在地 |
3丁目
25-33
MAP
|
| 交通 |
徒歩5分
徒歩2分
徒歩11分
徒歩11分
|
| 竣工年月 | 1985年9月 |
| リニューアル | 1998年5月 |
| 構造・規模 | 鉄骨鉄筋コンクリート(SRC造) 地上:8階、地下:1階 |
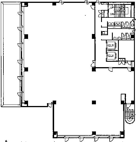
| 基準階面積(坪) | 157.69坪 |
| 天井高 | 2450mm |
| 空調 | 個別タイプ |
| エレベーター | 2 基 |
| 駐車場 | 16 台 |
| 耐震性能 | --- |
| 取引態様 | 媒介 |
1 / 10
google map
ハザードマップを見る
物件紹介
フロンティア御成門は東京都港区西新橋3丁目に所在しており、基準階面積は 157.69 坪、延床面積は 1,766.20坪の、オフィスビルです。都営三田線の御成門駅から徒歩2分です。1985年9月竣工で、1998年5月にリニューアル済み、建物の構造は、鉄骨鉄筋コンクリート(SRC造)で、地上8階・地下1階建です。基準階オフィスの空調方式は個別タイプ、天井高は2450mm、床仕様はOA床、エレベーターは2基設置されております。
このエリアは、ビジネス街として知られ、オフィスビルが多く立ち並んでいます。周辺には飲食店やカフェも充実しており、働く人々にとって便利な環境です。
物件情報に関する表示ルールについては当サイトのご利用規約をお読みください。
ご利用規約CONTACT US お問い合わせ
オフィスをお探しのみなさま
掲載中の物件以外にも、多数物件を取り扱っております。お電話またはお問い合わせフォームからお気軽にお問い合わせください。



