PROPERTY INFORMATION
浜松町スクエア
| 物件名 | 浜松町スクエア |
|---|---|
| 所在地 |
1丁目
30-5
MAP
|
| 交通 |
徒歩1分
徒歩1分
徒歩1分
徒歩1分
徒歩1分
|
| 竣工年月 | 2004年9月 |
| リニューアル | 2021年10月 |
| 構造・規模 | 鉄骨(S造) 鉄筋コンクリート(RC造) 鉄骨鉄筋コンクリート(SRC造) 地上:20階、地下:1階 |
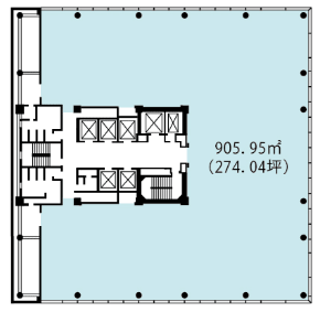
| 基準階面積(坪) | 274.04坪 |
| 天井高 | 2700mm |
| 空調 | 個別タイプ |
| エレベーター | 5 基 |
| 駐車場 | 70 台 |
| 耐震性能 | 制震 |
| 取引態様 | 媒介 |
1 / 10
google map
ハザードマップを見る
物件紹介
浜松町スクエアは東京都港区浜松町1丁目に所在しており、基準階面積は 274.04 坪、延床面積は 7,233.69 坪の、大型オフィスビルです。山手線の浜松町駅からは徒歩1分で、交通利便性に優れています。2004年9月竣工で、2021年10月にリニューアル済み、建物の構造は、鉄骨(S造)・鉄筋コンクリート(RC造)・鉄骨鉄筋コンクリート(SRC造)で、地上20階・地下1階建です。基準階オフィスの空調方式は個別タイプ、天井高は2700mm、床仕様はOA床、エレベーターは5基設置されており、制震構造が採用されています。
このエリアは、ビジネス街としての機能が充実しており、多くの企業がオフィスを構えています。また、飲食店や商業施設も多く、仕事帰りの食事や買い物にも便利です。
物件情報に関する表示ルールについては当サイトのご利用規約をお読みください。
ご利用規約CONTACT US お問い合わせ
オフィスをお探しのみなさま
掲載中の物件以外にも、多数物件を取り扱っております。お電話またはお問い合わせフォームからお気軽にお問い合わせください。



