PROPERTY INFORMATION
赤坂榎坂ビル
| 物件名 | 赤坂榎坂ビル |
|---|---|
| 所在地 |
1丁目
7-1
MAP
|
| 交通 |
徒歩1分
徒歩8分
徒歩8分
徒歩4分
|
| 竣工年月 | 2009年2月 |
| リニューアル | --- |
| 構造・規模 | 鉄骨(S造) 鉄筋コンクリート(RC造) 鉄骨鉄筋コンクリート(SRC造) 地上:11階、地下:2階 |
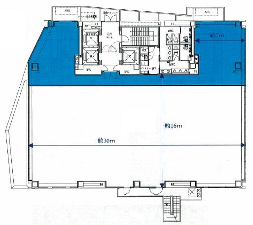
| 基準階面積(坪) | 171.87坪 |
| 天井高 | 2800mm |
| 空調 | セントラル |
| エレベーター | 2 基 |
| 駐車場 | 27 台 |
| 耐震性能 | --- |
| 取引態様 | 媒介 |
1 / 10
物件紹介
赤坂榎坂ビルは、東京都港区赤坂1丁目に所在するオフィスビルです。構造は鉄骨(S造)・鉄筋コンクリート(RC造)・鉄骨鉄筋コンクリート(SRC造)の地上11階・地下2階建で構成されています。交通アクセスは、東京地下鉄南北線溜池山王駅より徒歩1分、銀座線溜池山王駅より徒歩4分、千代田線、丸ノ内線国会議事堂前駅より徒歩8分です。2009年2月に竣工した本物件は、高い耐震性能を有し、港区という中心地において安定したビジネス環境を提供します。
■ 洗練された佇まいと重厚な構造が融合した外観デザイン
都心の中枢である港区赤坂1丁目に位置する本物件は、地上11階、地下2階の規模を誇る建物です。2009年2月に竣工し、鉄骨(S造)・鉄筋コンクリート(RC造)・鉄骨鉄筋コンクリート(SRC造)という複合的な構造を採用することで、高い堅牢性を実現しています。外観は落ち着いた色調で統一され、周囲の景観と調和しながらも、ビジネス拠点としての格式を感じさせる意匠となっています。延床面積は約2,808坪の広さを持ち、ゆとりある共用部やエントランスホールは、来客に対してもプロフェッショナルな印象を与えます。
■ 快適な執務を支える充実の設備スペックと室内空間
執務空間は、基準階面積が約171坪確保されており、効率的なオフィスレイアウトを可能にします。天井高は2,800mmを確保しているため、採光性も良好であり、圧迫感のない事務環境が整っています。床面にはOAフロアが設置されており、配線の自由度が高く、レイアウトの変更にも柔軟に対応可能です。空調方式には、フロア全体を適切に管理するセントラル空調を採用しており、一年を通じて均一な温度環境を維持します。また、館内には2基のエレベーターが稼働し、フロア間の移動を円滑にサポートします。
■ 4路線利用可能な圧倒的な交通網と利便性の高い周辺環境
本物件は、東京地下鉄南北線溜池山王駅より徒歩1分という至近距離に位置し、円滑な移動を可能にします。さらに銀座線溜池山王駅より徒歩4分、千代田線、丸ノ内線国会議事堂前駅からも徒歩8分という距離にあり、都内主要駅へのアクセスが容易です。周辺には日本の中枢を担う官公庁街や、各種金融機関、郵便局が徒歩圏内に揃っており、ビジネスに必要な諸機能が完備されています。周辺の飲食施設や利便施設の充実も、従業員の業務効率の向上に大きく寄与します。
■ 安全性を確保する耐震性能と信頼性の高い建物構造
本物件は、建築基準法に定められた耐震性能に適合しており、万が一の災害時にも企業の資産や従業員の安全を保護する構造となっています。鉄骨(S造)、鉄筋コンクリート(RC造)、鉄骨鉄筋コンクリート(SRC造)の組み合わせは、地震の揺れに対して優れた安定性を発揮します。地下2階まで設けられた強固な基礎構造は、長期間にわたるオフィス運用において安心感をもたらします。セントラル空調や2,800mmの天井高といった設備水準の高さは、執務者の快適性を両立させ、事業の継続性を支える重要な要素となっています。
赤坂榎坂ビルは、東京都心の利便性と高い建物スペックを兼ね備えた、赤坂エリアの拠点となるオフィスビルです。約171坪の整形な執務空間と2,800mmの天井高、そして4路線が利用可能なアクセス環境は、企業の生産性を高めるための最適な条件を提供します。堅牢な構造に支えられた安全性と、計算された空間設計により、多様なビジネスニーズに柔軟に対応することが可能です。港区赤坂という格式あるアドレスとともに、本物件は企業の安定した事業運営を強力に支援する拠点としての機能を持っています。
物件情報に関する表示ルールについては当サイトのご利用規約をお読みください。
ご利用規約CONTACT US お問い合わせ
オフィスをお探しのみなさま
掲載中の物件以外にも、多数物件を取り扱っております。お電話またはお問い合わせフォームからお気軽にお問い合わせください。



