PROPERTY INFORMATION
NBFコモディオ汐留
| 物件名 | NBFコモディオ汐留 |
|---|---|
| 所在地 |
2丁目
14-1
MAP
|
| 交通 |
徒歩4分
徒歩6分
徒歩6分
徒歩6分
徒歩3分
|
| 竣工年月 | 2006年8月 |
| リニューアル | --- |
| 構造・規模 | 鉄骨(S造) 鉄骨鉄筋コンクリート(SRC造) 地上:9階、地下:1階 |
| 基準階面積(坪) | 748.95坪 |
| 天井高 | 2700mm |
| 空調 | 個別タイプ |
| エレベーター | 6 基 |
| 駐車場 | 81 台 |
| 耐震性能 | --- |
| 取引態様 | 媒介 |
1 / 10
google map
ハザードマップを見る
物件紹介
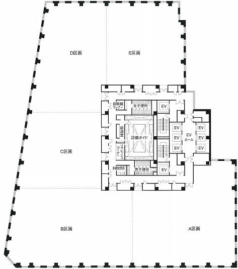
NBFコモディオ汐留は東京都港区東新橋2丁目に所在しており、基準階面積は 748.95 坪、延床面積は 8,979.71 坪の、大型オフィスビルです。都営大江戸線の汐留駅からは徒歩3分で、交通利便性に優れています。2006年8月竣工で、建物の構造は、鉄骨(S造)・鉄骨鉄筋コンクリート(SRC造)で、地上9階・地下1階建です。基準階オフィスの空調方式は個別タイプ、天井高は2700mm、床仕様はOA床、エレベーターは6基設置されております。
このエリアは、ビジネス街としての機能が充実しており、周辺には多くの飲食店や商業施設が建ち並んでいます。また、緑豊かな公園も点在しており、リフレッシュできる環境が整っています。
物件情報に関する表示ルールについては当サイトのご利用規約をお読みください。
ご利用規約CONTACT US お問い合わせ
オフィスをお探しのみなさま
掲載中の物件以外にも、多数物件を取り扱っております。お電話またはお問い合わせフォームからお気軽にお問い合わせください。



