PROPERTY INFORMATION
品川フロントビル
| 物件名 | 品川フロントビル |
|---|---|
| 所在地 |
2丁目
3-13
MAP
|
| 交通 |
徒歩3分
徒歩3分
|
| 竣工年月 | 2010年11月 |
| リニューアル | --- |
| 構造・規模 | 鉄骨(S造) 鉄骨鉄筋コンクリート(SRC造) 地上:19階、地下:3階 |
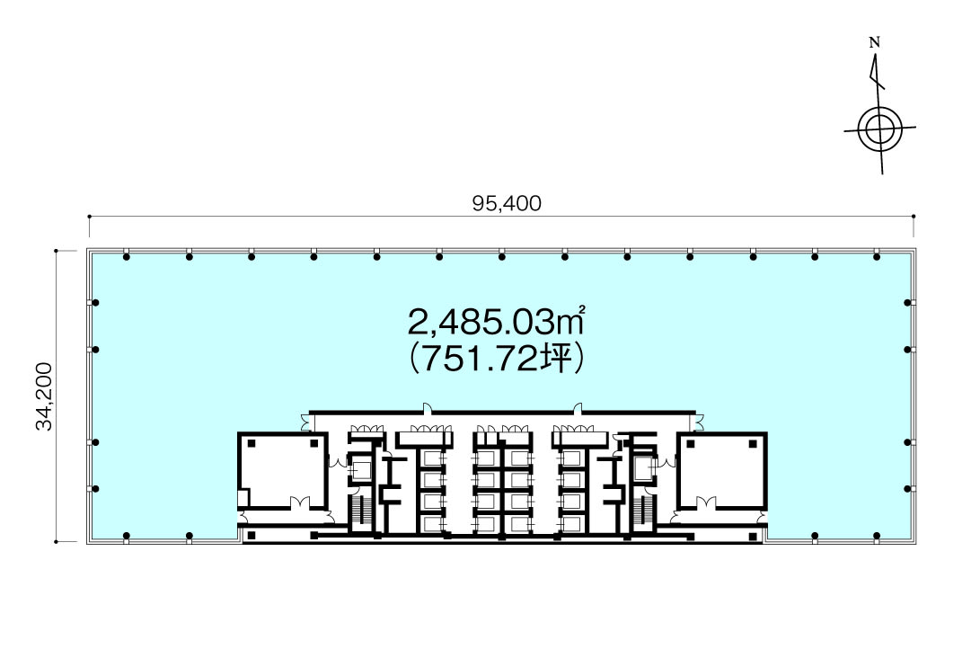
| 基準階面積(坪) | 732.05坪 |
| 天井高 | 3000mm |
| 空調 | 個別タイプ |
| エレベーター | 16 基 |
| 駐車場 | 168 台 |
| 耐震性能 | --- |
| 取引態様 | 媒介 |
1 / 10
google map
ハザードマップを見る
物件紹介
品川フロントビルは東京都港区港南2丁目に所在しており、基準階面積は 732.05 坪、延床面積は 21,911.89 坪の、大型オフィスビルです。京浜東北・根岸線の品川駅からは徒歩3分で、交通利便性に優れています。2010年11月竣工で、建物の構造は、鉄骨(S造)・鉄骨鉄筋コンクリート(SRC造)となっており、地上19階・地下3階建です。基準階オフィスの空調方式は個別タイプ、天井高は3000mm、床仕様はOA床、エレベーターは16基設置されております。
このエリアは、ビジネス街としての発展が著しく、多くの企業がオフィスを構えています。また、周辺には飲食店や商業施設も充実しており、働く人々にとって便利な環境が整っています。
物件情報に関する表示ルールについては当サイトのご利用規約をお読みください。
ご利用規約CONTACT US お問い合わせ
オフィスをお探しのみなさま
掲載中の物件以外にも、多数物件を取り扱っております。お電話またはお問い合わせフォームからお気軽にお問い合わせください。



