PROPERTY INFORMATION
西新橋1丁目ビル
| 物件名 | 西新橋1丁目ビル |
|---|---|
| 所在地 |
1丁目
24-14
MAP
|
| 交通 |
徒歩5分
徒歩3分
徒歩5分
|
| 竣工年月 | 1986年2月 |
| リニューアル | --- |
| 構造・規模 | 鉄骨鉄筋コンクリート(SRC造) 地上:12階、地下:2階 |
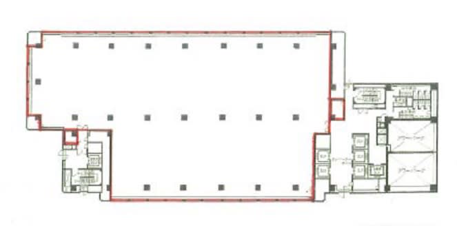
| 基準階面積(坪) | 391.66坪 |
| 天井高 | 2500mm |
| 空調 | 個別タイプ |
| エレベーター | --- |
| 駐車場 | 85 台 |
| 耐震性能 | --- |
| 取引態様 | 媒介 |
1 / 10
google map
ハザードマップを見る
物件紹介
西新橋1丁目ビルは東京都港区西新橋1丁目に所在しており、基準階面積は 391.66 坪、延床面積は 6,943.19 坪の、大型オフィスビルです。東京地下鉄銀座線の虎ノ門駅から徒歩3分です。1986年2月竣工で、建物の構造は、鉄骨鉄筋コンクリート(SRC造)となっており、地上12階・地下2階建です。基準階オフィスの空調方式は個別タイプ、天井高は2500mmです。
このエリアは、ビジネス街として多くの企業が集まっており、商業施設や飲食店も充実しています。交通の便が良く、主要な観光スポットへのアクセスも便利です。
物件情報に関する表示ルールについては当サイトのご利用規約をお読みください。
ご利用規約CONTACT US お問い合わせ
オフィスをお探しのみなさま
掲載中の物件以外にも、多数物件を取り扱っております。お電話またはお問い合わせフォームからお気軽にお問い合わせください。



