PROPERTY INFORMATION
第二田町ビル
| 物件名 | 第二田町ビル |
|---|---|
| 所在地 |
4丁目
14-1
MAP
|
| 交通 |
徒歩3分
徒歩3分
徒歩3分
|
| 竣工年月 | 2006年9月 |
| リニューアル | --- |
| 構造・規模 | 鉄骨(S造) 鉄骨鉄筋コンクリート(SRC造) 地上:16階、地下:1階 |
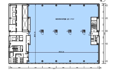
| 基準階面積(坪) | 321坪 |
| 天井高 | 2800mm |
| 空調 | セントラル+個別 |
| エレベーター | 8 基 |
| 駐車場 | 62 台 |
| 耐震性能 | --- |
| 取引態様 | 媒介 |
1 / 10
google map
ハザードマップを見る
物件紹介
第二田町ビルは東京都港区芝4丁目に所在しており、基準階面積は 321.00 坪、延床面積は 7,126.90 坪の、大型オフィスビルです。山手線の田町駅からは徒歩3分で、交通利便性に優れています。2006年9月竣工で、建物の構造は、鉄骨(S造)・鉄骨鉄筋コンクリート(SRC造)となっており、地上16階・地下1階建です。基準階オフィスの空調方式はセントラル+個別、天井高は2800mm、床仕様はOA床、エレベーターは8基設置されております。
このエリアは、ビジネス街としての機能が充実しており、多くの企業がオフィスを構えています。また、飲食店やカフェも多く、ランチタイムや仕事後のリフレッシュに便利です。
物件情報に関する表示ルールについては当サイトのご利用規約をお読みください。
ご利用規約CONTACT US お問い合わせ
オフィスをお探しのみなさま
掲載中の物件以外にも、多数物件を取り扱っております。お電話またはお問い合わせフォームからお気軽にお問い合わせください。



