PROPERTY INFORMATION
msb Tamachi 田町ステーションタワーS
| 物件名 | msb Tamachi 田町ステーションタワーS |
|---|---|
| 所在地 |
3丁目
1-21
MAP
|
| 交通 |
徒歩1分
徒歩1分
徒歩3分
徒歩3分
|
| 竣工年月 | 2018年5月 |
| リニューアル | --- |
| 構造・規模 | 鉄筋コンクリート(RC造) 鉄骨鉄筋コンクリート(SRC造) 地上:31階、地下:2階 |
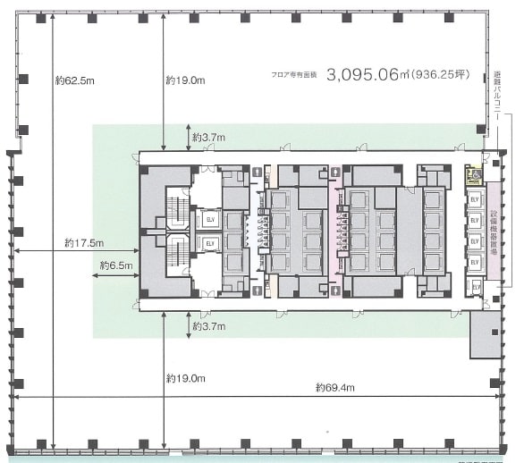
| 基準階面積(坪) | 936.25坪 |
| 天井高 | 2800mm |
| 空調 | その他 |
| エレベーター | 有り |
| 駐車場 | 290 台 |
| 耐震性能 | 制震 |
| 取引態様 | 媒介 |
1 / 10
google map
ハザードマップを見る
物件紹介
msb Tamachi 田町ステーションタワーSは東京都港区芝浦3丁目に所在しており、基準階面積は 936.25 坪、延床面積は 41,628.84 坪の、大型オフィスビルです。山手線の田町駅に直結しており、雨の日でも濡れずにアクセスが可能です。2018年5月竣工で、建物の構造は、鉄筋コンクリート(RC造)・鉄骨鉄筋コンクリート(SRC造)で、地上31階・地下2階建です。基準階オフィスの天井高は2800mm、床仕様はOA床、制震構造が採用されています。
このエリアは、ビジネス街としての利便性が高く、多くの企業がオフィスを構えています。また、飲食店やカフェも充実しており、ランチタイムや仕事後のリフレッシュに最適な環境です。
物件情報に関する表示ルールについては当サイトのご利用規約をお読みください。
ご利用規約CONTACT US お問い合わせ
オフィスをお探しのみなさま
掲載中の物件以外にも、多数物件を取り扱っております。お電話またはお問い合わせフォームからお気軽にお問い合わせください。



