PROPERTY INFORMATION
東京ミッドタウン ミッドタウン・イースト
| 物件名 | 東京ミッドタウン ミッドタウン・イースト |
|---|---|
| 所在地 |
9丁目
7-2
MAP
|
| 交通 |
徒歩1分
徒歩1分
徒歩3分
徒歩10分
|
| 竣工年月 | 2007年1月 |
| リニューアル | --- |
| 構造・規模 | 鉄骨(S造) 鉄筋コンクリート(RC造) 鉄骨鉄筋コンクリート(SRC造) 地上:25階、地下:4階 |
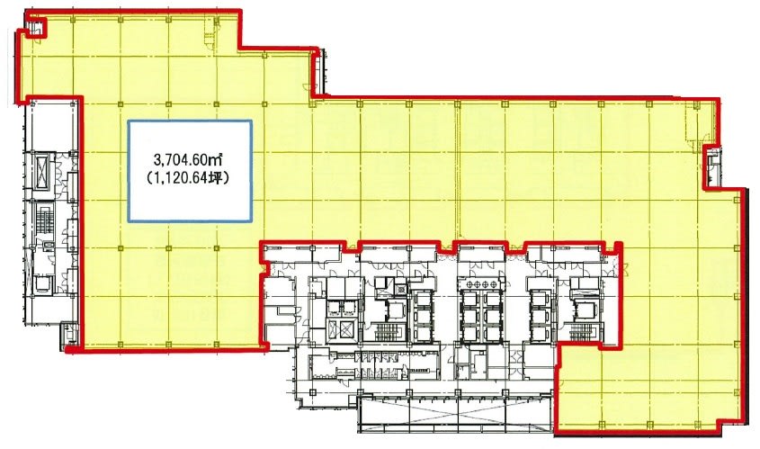
| 基準階面積(坪) | 1120.64坪 |
| 天井高 | 2800mm |
| 空調 | 個別タイプ |
| エレベーター | 18 基 |
| 駐車場 | 1164 台 |
| 耐震性能 | 制震 |
| 取引態様 | 媒介 |
1 / 10
google map
ハザードマップを見る
物件紹介
東京ミッドタウン ミッドタウン・イーストは東京都港区赤坂9丁目に所在しており、基準階面積は 1,120.64 坪、延床面積は 35,412.97 坪の、大型オフィスビルです。都営大江戸線の六本木駅からは徒歩1分で、交通利便性に優れています。2007年1月竣工で、建物の構造は、鉄骨(S造)・鉄筋コンクリート(RC造)・鉄骨鉄筋コンクリート(SRC造)で、地上25階・地下4階建です。基準階オフィスの空調方式は個別タイプ、天井高は2800mm、エレベーターは18基設置されており、制震構造が採用されています。
このエリアは、商業施設や飲食店が充実しており、ビジネスパーソンや観光客に人気があります。また、緑豊かな公園や文化施設も多く、リラックスできる環境が整っています。
物件情報に関する表示ルールについては当サイトのご利用規約をお読みください。
ご利用規約CONTACT US お問い合わせ
オフィスをお探しのみなさま
掲載中の物件以外にも、多数物件を取り扱っております。お電話またはお問い合わせフォームからお気軽にお問い合わせください。



