PROPERTY INFORMATION
物件紹介
(仮称)赤坂二・六丁目地区開発計画(東棟)は、東京都港区赤坂2丁目に所在する大型オフィスビルです。構造には鉄骨(S造)、鉄筋コンクリート(RC造)、鉄骨鉄筋コンクリート(SRC造)を採用しており、地上40階、地下4階建の壮大な規模を有しています。交通の面では、東京地下鉄千代田線赤坂駅より徒歩1分の距離に位置しており、都心部への優れたアクセス性を備えています。竣工年月は2028年3月であり、延床面積は約50,729坪に達します。
■ 壮大な規模と調和する建築デザイン
本物件は、地上40階建の圧倒的な存在感を放つ建築物です。鉄骨(S造)を主軸に、鉄筋コンクリート(RC造)および鉄骨鉄筋コンクリート(SRC造)を組み合わせた堅牢な構造を採用しています。延床面積は約50,729坪という広大な規模を誇り、都市部における主要なビジネス拠点としての機能を十分に備えています。外観や共用部は、企業の品格を象徴する格調高い設えとなっており、来訪者に対してもプロフェッショナルな印象を与えます。エントランスエリアは開放的な空間を確保し、効率的な動線設計により円滑な入退館を支えます。
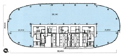
■ 柔軟なレイアウトを可能にする執務スペック
本物件の基準階面積は約817坪であり、広大なワンフロアの空間を提供します。この広さは、部署を跨いだ活発なコミュニケーションや、多様なオフィスレイアウトの構築に寄与します。天井高は2,850mmを確保しており、開放感のある快適な執務環境を実現します。大規模なフロアプレートは、組織の変更にも柔軟に対応できる汎用性を備えています。機能的かつ効率的な空間設計は、企業の生産性向上を支援する強固な基盤となります。
■ 卓越した利便性を有する立地環境
本物件は、東京地下鉄千代田線赤坂駅より徒歩1分という至近距離に位置しています。大手町駅や表参道駅といった主要駅へダイレクトにアクセス可能な交通ネットワークは、ビジネスの機動性を高めます。周辺は多くの企業が集積するビジネス街であるとともに、公共施設や金融機関、商業施設が充実しており、日々の業務効率を支える環境が整っています。利便性の高い立地は、従業員の通勤負担軽減や、取引先との円滑な連携において大きな優位性をもたらします。
■ 堅牢な構造と安全性
建物の構造には、鉄骨(S造)、鉄筋コンクリート(RC造)、鉄骨鉄筋コンクリート(SRC造)を採用し、高い堅牢性を確保しています。これにより、不測の事態においても企業の資産と従業員の安全を保護する環境を提供します。地下4階から地上40階にわたる重厚な造りは、長期的なビジネス拠点としての信頼性を担保します。高度な建築技術に基づいた安全性は、事業継続計画(BCP)の観点からも極めて重要な要素となります。
(仮称)赤坂二・六丁目地区開発計画(東棟)は、優れた交通利便性と大規模な執務空間を兼ね備えた大型オフィスビルです。都市部におけるビジネスの要衝としての機能を果たし、企業の持続的な成長を支える環境を提供します。高いスペックと信頼の構造は、長期的なオフィス戦略において確かな価値をもたらします。
物件情報に関する表示ルールについては当サイトのご利用規約をお読みください。
ご利用規約CONTACT US お問い合わせ
オフィスをお探しのみなさま
掲載中の物件以外にも、多数物件を取り扱っております。お電話またはお問い合わせフォームからお気軽にお問い合わせください。



