PROPERTY INFORMATION
JMFビル東陽町01
| 物件名 | JMFビル東陽町01 |
|---|---|
| 所在地 |
4丁目
11-38
MAP
|
| 交通 |
徒歩7分
|
| 竣工年月 | 1990年2月 |
| リニューアル | 2007年1月 |
| 構造・規模 | 鉄骨鉄筋コンクリート(SRC造) 地上:8階、地下:1階 |
| 基準階面積(坪) | 2694.85坪 |
| 天井高 | 2600mm |
| 空調 | 個別タイプ |
| エレベーター | 5 基 |
| 駐車場 | 110 台 |
| 耐震性能 | --- |
| 取引態様 | 媒介 |
1 / 10
google map
ハザードマップを見る
物件紹介
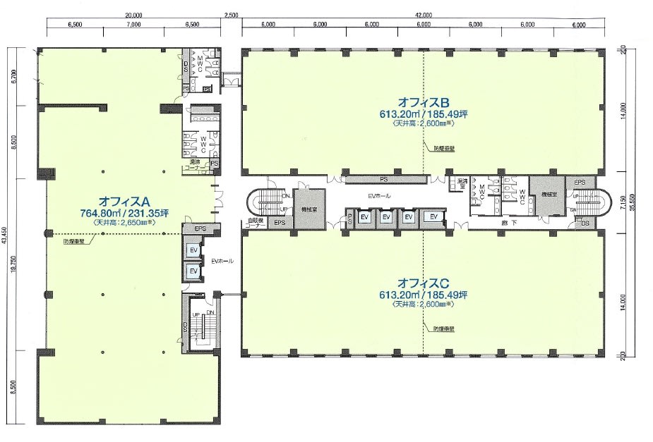
JMFビル東陽町01は東京都江東区東陽4丁目に所在しており、基準階面積は 2,694.85 坪、延床面積は 5,588.98 坪の、大型オフィスビルです。東京地下鉄東西線の東陽町駅から徒歩7分です。1990年2月竣工で、2007年1月にリニューアル済み、建物の構造は、鉄骨鉄筋コンクリート(SRC造)で、地上8階・地下1階建です。基準階オフィスの空調方式は個別タイプ、天井高は2600mm、床仕様はOA床、エレベーターは5基設置されております。
このエリアは、商業施設や飲食店が多く、生活利便性が高いです。また、緑豊かな公園も点在しており、リラックスできる環境が整っています。
物件情報に関する表示ルールについては当サイトのご利用規約をお読みください。
ご利用規約CONTACT US お問い合わせ
オフィスをお探しのみなさま
掲載中の物件以外にも、多数物件を取り扱っております。お電話またはお問い合わせフォームからお気軽にお問い合わせください。



