PROPERTY INFORMATION
豊洲フォレシア
| 物件名 | 豊洲フォレシア |
|---|---|
| 所在地 |
3丁目
2-24
MAP
|
| 交通 |
徒歩1分
|
| 竣工年月 | 2014年7月 |
| リニューアル | --- |
| 構造・規模 | 鉄骨(S造) 鉄骨鉄筋コンクリート(SRC造) 地上:16階、地下:2階 |
| 基準階面積(坪) | 1385.15坪 |
| 天井高 | 2850mm |
| 空調 | 個別タイプ |
| エレベーター | 22 基 |
| 駐車場 | 239 台 |
| 耐震性能 | 免震 |
| 取引態様 | 媒介 |
1 / 10
google map
ハザードマップを見る
物件紹介
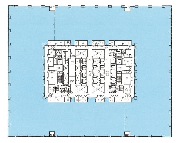
豊洲フォレシアは東京都江東区豊洲3丁目に所在しており、基準階面積は 1,385.15 坪、延床面積は 30,666.00 坪の、大型オフィスビルです。東京地下鉄有楽町線の豊洲駅からは徒歩1分で、交通利便性に優れています。2014年7月竣工で、建物の構造は、鉄骨(S造)・鉄骨鉄筋コンクリート(SRC造)となっており、地上16階・地下2階建です。基準階オフィスの空調方式は個別タイプ、天井高は2850mm、床仕様はOA床、エレベーターは22基設置されており、制震構造が採用されています。
このエリアは、商業施設や飲食店が充実しており、住環境も整っています。さらに、豊洲市場や公園などの観光スポットも多く、週末には多くの人々が訪れます。
物件情報に関する表示ルールについては当サイトのご利用規約をお読みください。
ご利用規約CONTACT US お問い合わせ
オフィスをお探しのみなさま
掲載中の物件以外にも、多数物件を取り扱っております。お電話またはお問い合わせフォームからお気軽にお問い合わせください。



