PROPERTY INFORMATION
メブクス豊洲
| 物件名 | メブクス豊洲 |
|---|---|
| 所在地 |
6丁目
4-34
MAP
|
| 交通 |
徒歩1分
徒歩15分
徒歩15分
|
| 竣工年月 | 2021年8月 |
| リニューアル | --- |
| 構造・規模 | 鉄骨(S造) 鉄骨鉄筋コンクリート(SRC造) その他 地上:11階 |
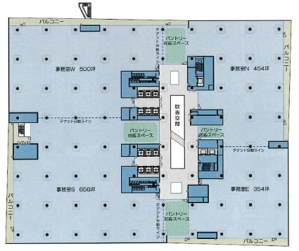
| 基準階面積(坪) | 1986坪 |
| 天井高 | 2900mm |
| 空調 | セントラル |
| エレベーター | 16 基 |
| 駐車場 | 140 台 |
| 耐震性能 | 免震 |
| 取引態様 | 媒介 |
1 / 10
google map
ハザードマップを見る
物件紹介
メブクス豊洲は東京都江東区豊洲6丁目に所在しており、基準階面積は 1,986.00 坪、延床面積は 26,620.00 坪の、大型オフィスビルです。ゆりかもめの市場前駅からは徒歩1分で、交通利便性に優れています。2021年8月竣工で、建物の構造は、鉄骨(S造)・鉄骨鉄筋コンクリート(SRC造)・その他で、地上11階建です。基準階オフィスの空調方式はセントラル、天井高は2900mm、床仕様はOA床、エレベーターは16基設置されており、制震構造が採用されています。
このエリアは、近年再開発が進み、商業施設や住宅が増加しているため、生活環境が整っています。また、豊洲市場や公園などのレジャースポットも多く、家族連れにも人気のエリアです。
物件情報に関する表示ルールについては当サイトのご利用規約をお読みください。
ご利用規約CONTACT US お問い合わせ
オフィスをお探しのみなさま
掲載中の物件以外にも、多数物件を取り扱っております。お電話またはお問い合わせフォームからお気軽にお問い合わせください。



