PROPERTY INFORMATION
日本生命五反田NNビル
| 物件名 | 日本生命五反田NNビル |
|---|---|
| 所在地 |
2丁目
12-19
MAP
|
| 交通 |
徒歩4分
徒歩4分
徒歩4分
|
| 竣工年月 | 1984年3月 |
| リニューアル | 2006年 |
| 構造・規模 | 鉄骨鉄筋コンクリート(SRC造) 地上:13階 |
| 基準階面積(坪) | 185.73坪 |
| 天井高 | 2500mm |
| 空調 | 個別タイプ |
| エレベーター | 2 基 |
| 駐車場 | 32 台 |
| 耐震性能 | --- |
| 取引態様 | 媒介 |
1 / 10
google map
ハザードマップを見る
物件紹介
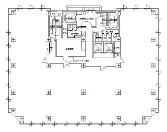
日本生命五反田NNビルは東京都品川区西五反田2丁目に所在しており、基準階面積は 185.73 坪、延床面積は 3,423.89 坪の、大型オフィスビルです。山手線の五反田駅からは徒歩4分で、交通利便性に優れています。1984年3月竣工で、2006年にリニューアル済み、建物の構造は、鉄骨鉄筋コンクリート(SRC造)で、地上13階建です。基準階オフィスの空調方式は個別タイプ、天井高は2500mm、床仕様はOA床、エレベーターは2基設置されております。
このエリアは、商業施設や飲食店が多く、ビジネスパーソンにとって便利な環境が整っています。また、緑豊かな公園も点在しており、リフレッシュできる場所も多いです。
物件情報に関する表示ルールについては当サイトのご利用規約をお読みください。
ご利用規約CONTACT US お問い合わせ
オフィスをお探しのみなさま
掲載中の物件以外にも、多数物件を取り扱っております。お電話またはお問い合わせフォームからお気軽にお問い合わせください。



